EasyManua.ls Logo

Fujitsu PRIMERGY RX200 S6 - Page 47

Fujitsu PRIMERGY RX200 S6
126 pages
To Next Page IconTo Next Page
To Next Page IconTo Next Page
To Previous Page IconTo Previous Page
To Previous Page IconTo Previous Page
Loading...
RX200 S6 Operating Manual 47
Hardware installation
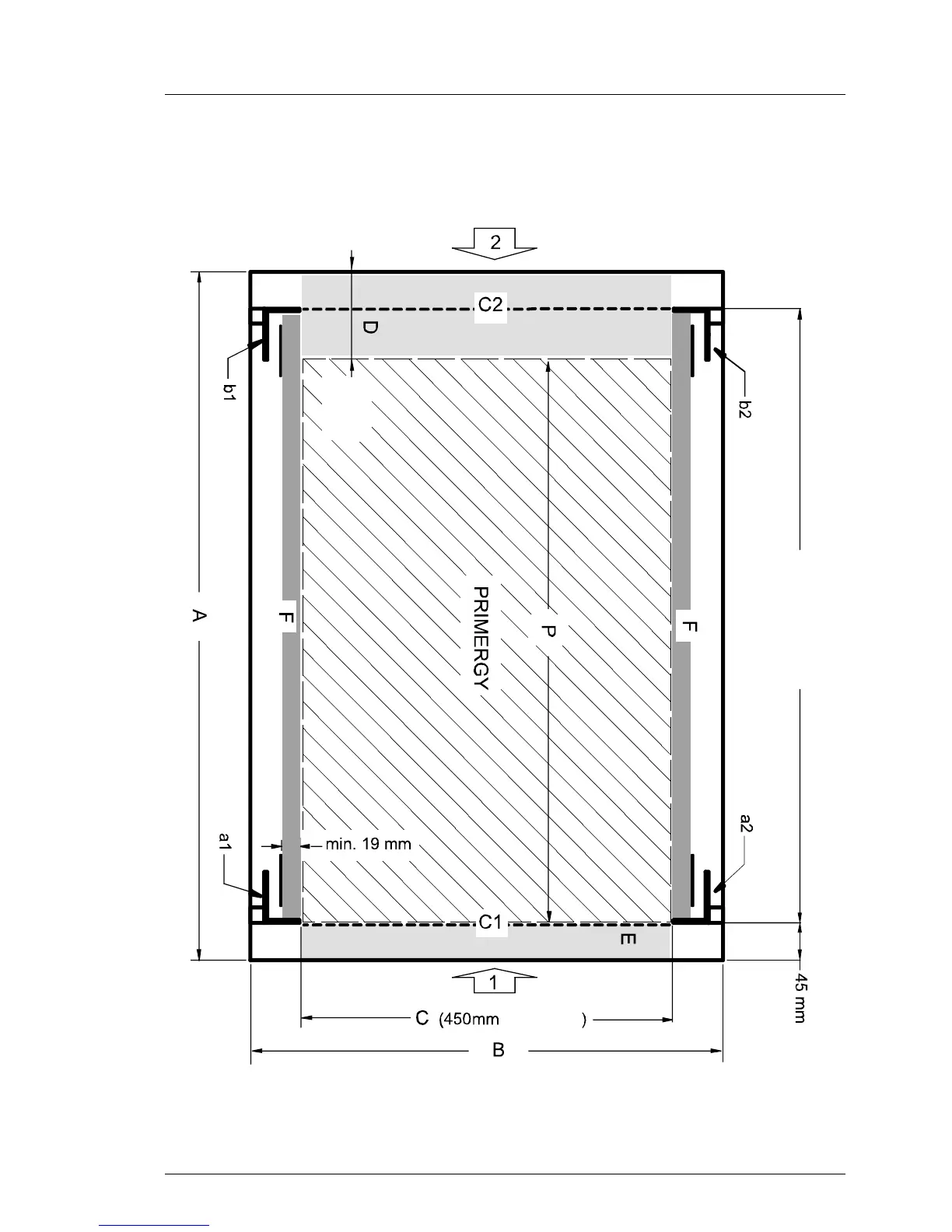
Figure 2: Mechanical requirements
735 - 770 mm
100 mm
+/- 1,6mm

Table of Contents

Other manuals for Fujitsu PRIMERGY RX200 S6

Related product manuals