EasyManua.ls Logo

Gardner Denver EBU99E - Figure 5-4 - Oil Flow Diagram - Remote Overhead Mounted Cooler

Gardner Denver EBU99E
78 pages
Print Icon
To Next Page IconTo Next Page
To Next Page IconTo Next Page
To Previous Page IconTo Previous Page
To Previous Page IconTo Previous Page
Loading...
13-21-602 Page 52
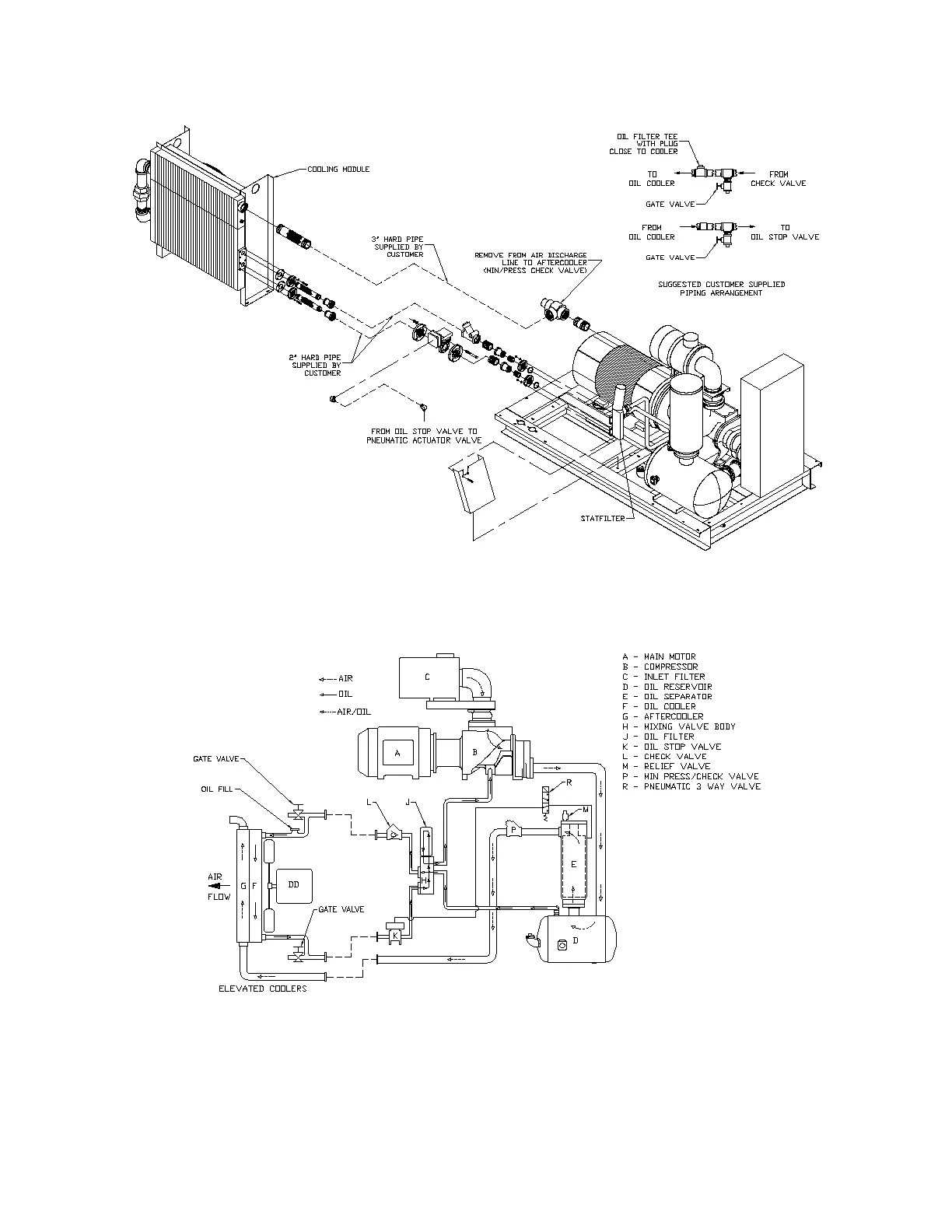
Figure 5-4 – OIL FLOW DIAGRAM – REMOTE OVERHEAD MOUNTED COOLER
204EAQ797-A
(Ref. Drawing)
205EDM797
(Ref. Drawing)

Table of Contents

Related product manuals