EasyManua.ls Logo

gefran GFX4 - Installation

gefran GFX4
35 pages
Print Icon
To Next Page IconTo Next Page
To Next Page IconTo Next Page
To Previous Page IconTo Previous Page
To Previous Page IconTo Previous Page
Loading...
7
80395G_MHW_GFX4_09-2010_ENG
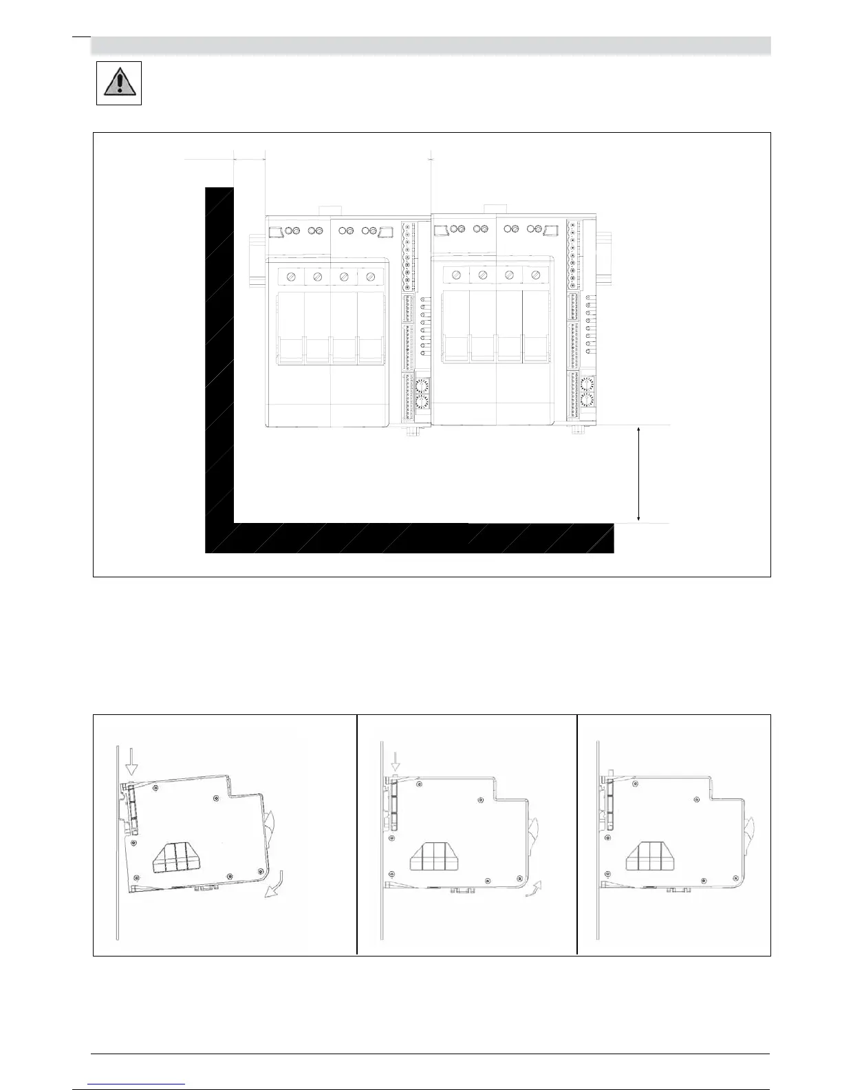
Figure 3
2.6
installation
Attention: respect the minimum distances shown in figure 3 to provide adequate air circulation.
For correct attachment/release of the module on the DIN guide, do as follows:
- keep the attach/release cursor pressed
- insert/remove the module
- release the cursor
PRESS
TURN
TURN
PRESS
Figure 4 Figure 5 Figure 6
> 20 mm
> 100 mm
0 mm
7 / 35

Table of Contents

Other manuals for gefran GFX4

Related product manuals