EasyManua.ls Logo

Harris Constellation - Figure 6-6: ACU, Hot-Standby Transmitters, Space-Diversity Receivers (Front View); Figure 6-7: ACU, Hot-Standby;Frequency-Diversity, 2-Antenna (T;R, T;R) (Top View)

Default Icon
126 pages
To Next Page IconTo Next Page
To Next Page IconTo Next Page
To Previous Page IconTo Previous Page
To Previous Page IconTo Previous Page
Loading...
Constellation® January 2006
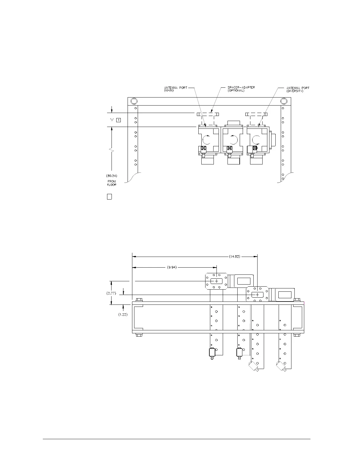
6-6 Antenna Coupling Unit (ACU)
Figure 6-6: ACU, hot-standby Transmitters, space-diversity
Receivers (front view), mechanical drawing
Figure 6-7: ACU, hot-standby/frequency-diversity, 2-
antenna (T/R, T/R) (top view), mechanical
drawing
1 Refer to Table 6-2 on page 6-1.
TX1
RX1
TX2
RX2

Table of Contents

Other manuals for Harris Constellation

Related product manuals