EasyManua.ls Logo

Harris FlexStar - Page 53

Default Icon
106 pages
Print Icon
To Next Page IconTo Next Page
To Next Page IconTo Next Page
To Previous Page IconTo Previous Page
To Previous Page IconTo Previous Page
Loading...
4/18/11 888-2587-001 2-25
WARNING: Disconnect primary power prior to servicing.
Section 2 Installation & Initial Turn-On
FM HD Radio System
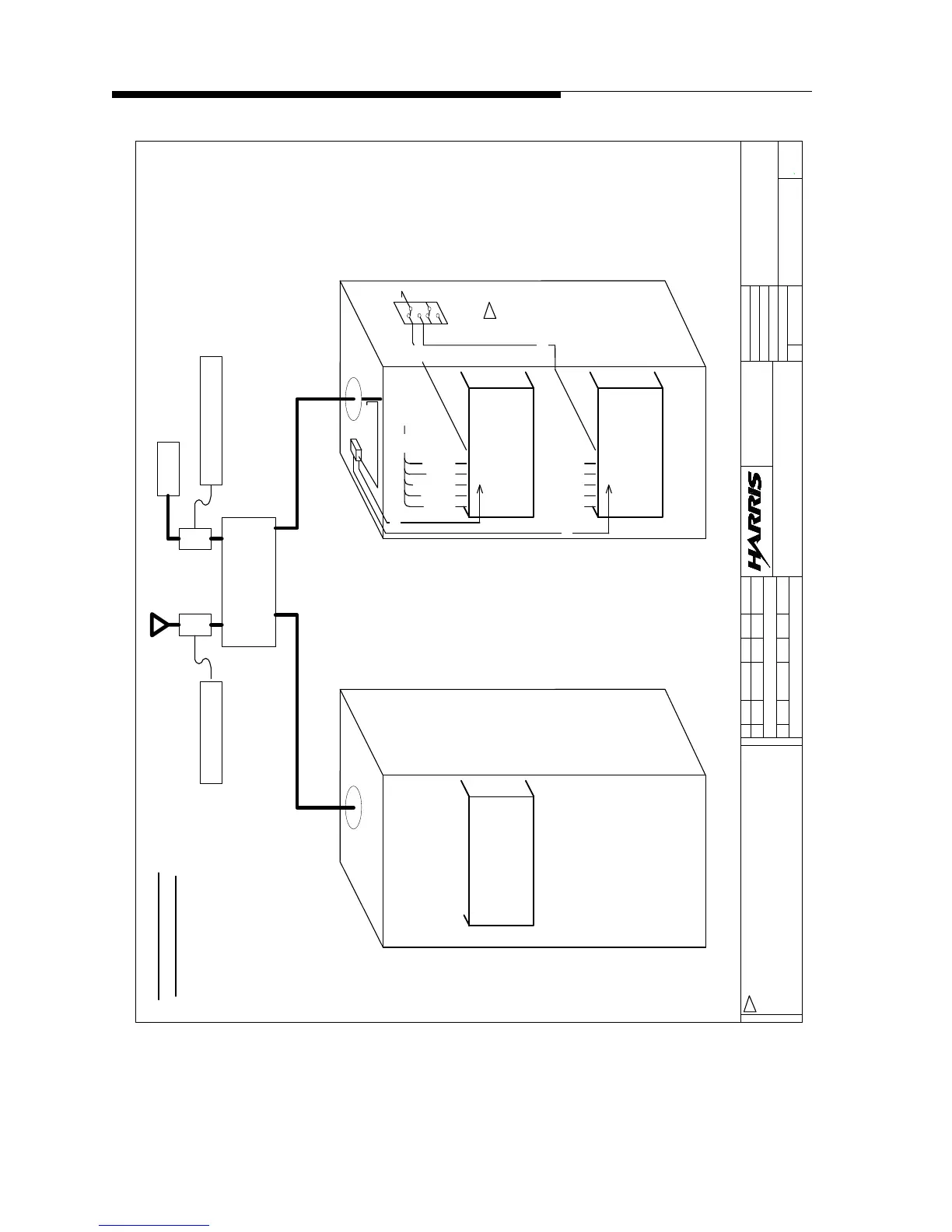
Figure 2-10 High-Level with dual exciters.
B
-
B . 11-7-06
BAK BAK
DELETED W902
.
NEWDWG
.
..
.A
P34701
A
REV
DATE
TITLE
OF
SHEET
BY
DRAWN
CHK
ENG
ENG
PROJ
ENG
MFG
NO.
DWG
HARRIS CORPORATION
BROADCAST COMMUNICATIONS
P.O. BOX 4290
QUINCY, ILLINOIS 62305
THIS DOCUMENT CONTAINS PROPRIETARY DATA OF HARRIS
CORPORATION. NO DISCLOSURE, REPRODUCTION, OR USE OF ANY
PART THEREOF MAY BE MADE EXCEPT BY WRITTEN PERMISSION.
DATEZONELTR ENG ECO NBRDFTM
S
E
T
O
N
S
I
V
E
R
I
O
N
FLEXSTAR EXCITER
RTAC SAMPLE
MUTE
FAULT
SAMPLE
APC
TX CNTRL
H
D
R
F
O
U
T
HIGH-LEVEL ZHD+
CONFIGURATION
Dual Flexstar
Exciters
10DB
COMBINER
LOAD
HD
RF OUTPUT
FM
RF OUTPUT
ZHD+ TRANSMITTER
FLEXSTAR EXCITER
RTAC SAMPLE
H
D
R
F
O
U
T
RF SAMPLE
ANALOG EXCITER
ANALOG TRANSMITTER
METERING (OPT)METERING
MODE
EXCITER
SWITCH
BOARD
NOT USED IN Z4, Z6, OR Z8. RF OUTPUT ROUTES
DIRECTLY TO A23 3DB PADS.
1
1
817-2329-009
SYSTEM CONFIGURATION,
ZHD+, CONFIG #9 & #33
11
B. KLESNER
1-28-06
B. KLESNER
B. KLESNER
B. OLSON
C
O
NFI
G
U
RA
TI
O
N
#
9
&
#
3
3
W148
W3
W1
W149
W4

Table of Contents

Related product manuals