EasyManua.ls Logo

Harris FlexStar - Page 72

Default Icon
106 pages
Print Icon
To Next Page IconTo Next Page
To Next Page IconTo Next Page
To Previous Page IconTo Previous Page
To Previous Page IconTo Previous Page
Loading...
2-44 888-2587-001 4/18/11
WARNING: Disconnect primary power prior to servicing.
FM HD Radio System
Section 2 Installation & Initial Turn-On
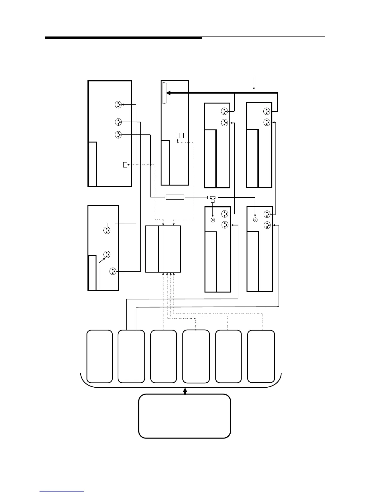
HOST (
FM
)
AES AUDIO
ETHERNET SWITCH
( CUSTOMER PROVIDED )
Customer Selected Equipment
Customer Selected Equipment
IN 2
RED
IN 1
WHITE
SPS2
AES AUDIO
SPS1
AES AUDIO
NEUSTAR SPS1 AUDIO
PROCESSOR
NEUSTAR SPS2 AUDIO
PROCESSOR
A
ES 1
OUT
AES 1
IN
AES 1
OUT
Supplied
MULT-XLR to DB-25
Cable
HDI-100 IMPORTER
ETHERNET
Customer Selected Equipment
Customer Selected Equipment
SPS1 AUDIO PROCESSOR /
RATE CONVERTER
AES 1
IN
AES 1
OUT
AES 1
IN
AES 1
OUT
SPS2
AES AUDIO
SPS1
AES AUDIO
SYNC IN
SYNC
IN
SPS2 AUDIO PROCESSOR /
RATE CONVERTER
AES 1
IN
IMPORTER AT TRANSMITTER SITE FOR DEXSTAR INSTALLATION
FM / MPS DA
AES3 32kHz to
96kHz
RBDS
MPS PAD
(400) bps
SPS PAD
(400) bps
(SPS1- SPS2)
SECONDARY
AUDIO / DATA
SERVICE
(AAS) ADVANCED
APPLICATION
SERVICES
T1 SERVICE
DIRECT
FIBER
SPREAD
SPECTRUM
SATELLITE
WIDE
BANDWIDTH
STL
HARRIS ePAL
ETHERNET
A13J
1
2
44.1KHZ
SYNC OUT
DEXSTAR EXCITE
R
A2J15
IN
A2J1
1
OUT 1
A13J
1
1
44.1KHZ
SYNC OUT
A2J8
44.1KHZ
SYNC
IN 1
A13J8
DAB AES
AUDIO IN
*1
*1
110 OHM to 75 OHM
IMPEDANCE TRANSFORMER
CANARE P/N BCJ-XJ-TRB
HARRIS P/N BCJ-XJ-TRB

Table of Contents

Related product manuals