EasyManua.ls Logo

Hawk Gladiator - Flexible Cable Probe Dimensions

Default Icon
40 pages
Print Icon
To Next Page IconTo Next Page
To Next Page IconTo Next Page
To Previous Page IconTo Previous Page
To Previous Page IconTo Previous Page
Loading...
6
7
Sultan 234 Series
Admittance Smart Switch Series
Manual
Rev 1.2, June 2008
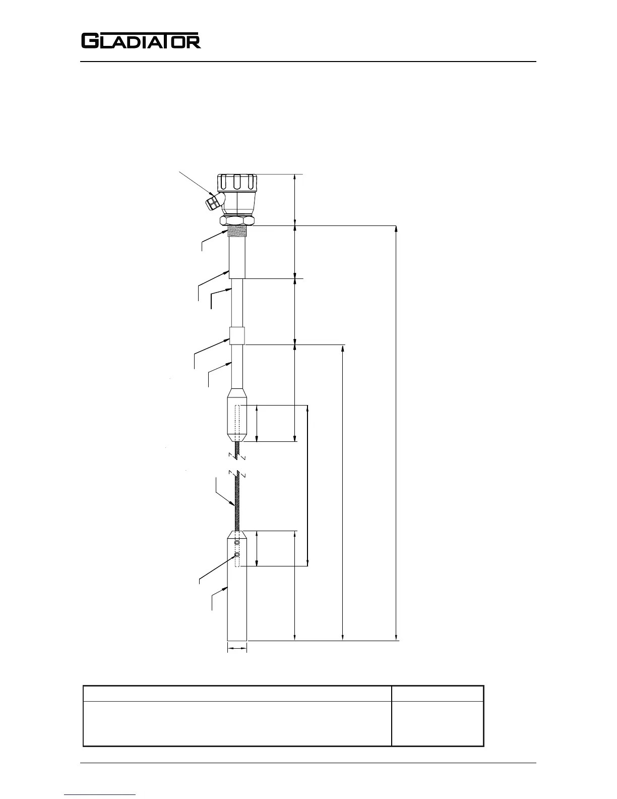
DIMENSIONS
FLEXIBLE CABLE PROBE
M20 x 1.5
or 3/4” NPT adaptor
115mm
Cable Length (mm, inch) Active + Guard + Ground (Rope Length)
C100 (1000mm, 39.3”) = 750mm, 29.5” + 250mm, 9.8” 451mm, 17.8”
C200 (2000mm, 78.7”) = 1750mm, 68.9” + 250mm, 9.8” 1451mm, 57.1”
C300 (3000mm, 118.1”) = 2750mm, 108.3” + 250mm, 9.8” 2451mm, 96.5”
SS 316
Removable grub screws
for cable adjustment
Ø 8mm (0.3”)
SS 316
Teflon
SS 316
Teflon
SS 316
100mm (3.9”)
Ground
150mm (5.9”)
Guard
Rope
250mm (9.8”)
Weight
Active
Cable Length
Mounting Thread
(1.5” NPT or BSP only)
Ø 40mm (1.6”)
83mm (3.3”)
83mm (3.3”)
215mm (8.4”)

Other manuals for Hawk Gladiator

Related product manuals