EasyManua.ls Logo

HIKVISION DS-KD8003 Series - Page 41

HIKVISION DS-KD8003 Series
113 pages
Print Icon
To Next Page IconTo Next Page
To Next Page IconTo Next Page
To Previous Page IconTo Previous Page
To Previous Page IconTo Previous Page
Loading...
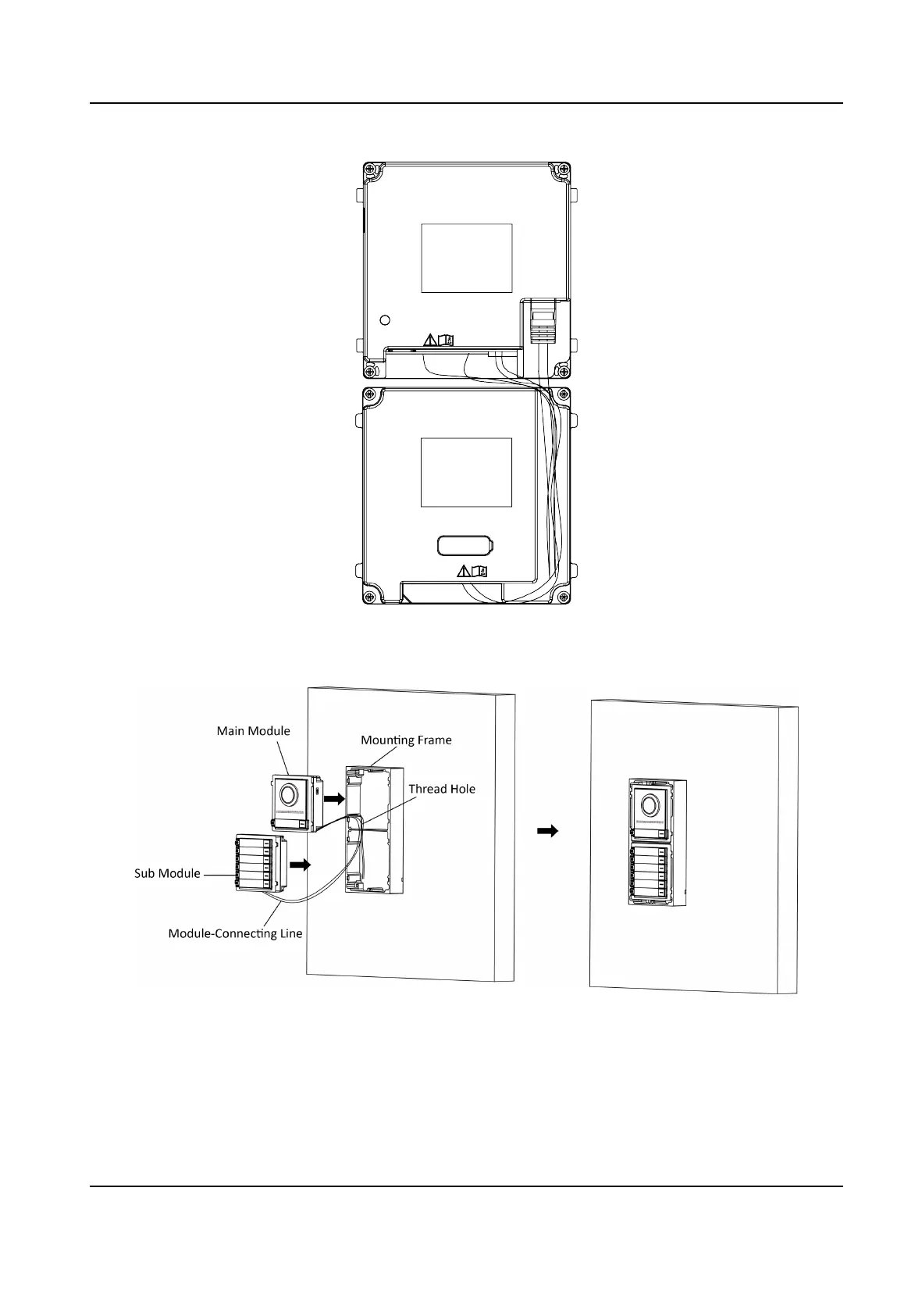
Figure 4-18 Line Connecon Eect Picture
7.
Insert the modules into the frame aer wiring. The main unit must be placed in the top grid.
Figure 4-19 Insert the Modules
8.
Use the hexagon wrench in the package to x the cover onto the frame.
DS-KD8003 Series Module Door Staon User Manual
33

Related product manuals