EasyManua.ls Logo

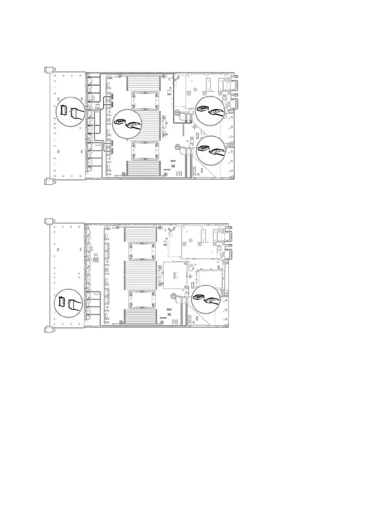
Hitachi HA820 G2 - Cable Routing: 24 Nvme Differential; Cable Routing: 8 Nvme Box 3 to 4-Port Primary Riser

Hitachi HA820 G2
188 pages
To Next Page IconTo Next Page
To Next Page IconTo Next Page
To Previous Page IconTo Previous Page
To Previous Page IconTo Previous Page
Loading...
Hitachi Advanced Server HA820 G2 User Guide 156
Cable routing: 24NVMe Differential
Cable routing: 8NVMe box 3 to 4-port primary riser

Table of Contents

Related product manuals