EasyManua.ls Logo

Honeywell VFD CORE - Page 62

Honeywell VFD CORE
258 pages
Print Icon
To Next Page IconTo Next Page
To Next Page IconTo Next Page
To Previous Page IconTo Previous Page
To Previous Page IconTo Previous Page
Loading...
CHAPTER 7: OPTIONAL COMPONENTS
63-4528—04 62
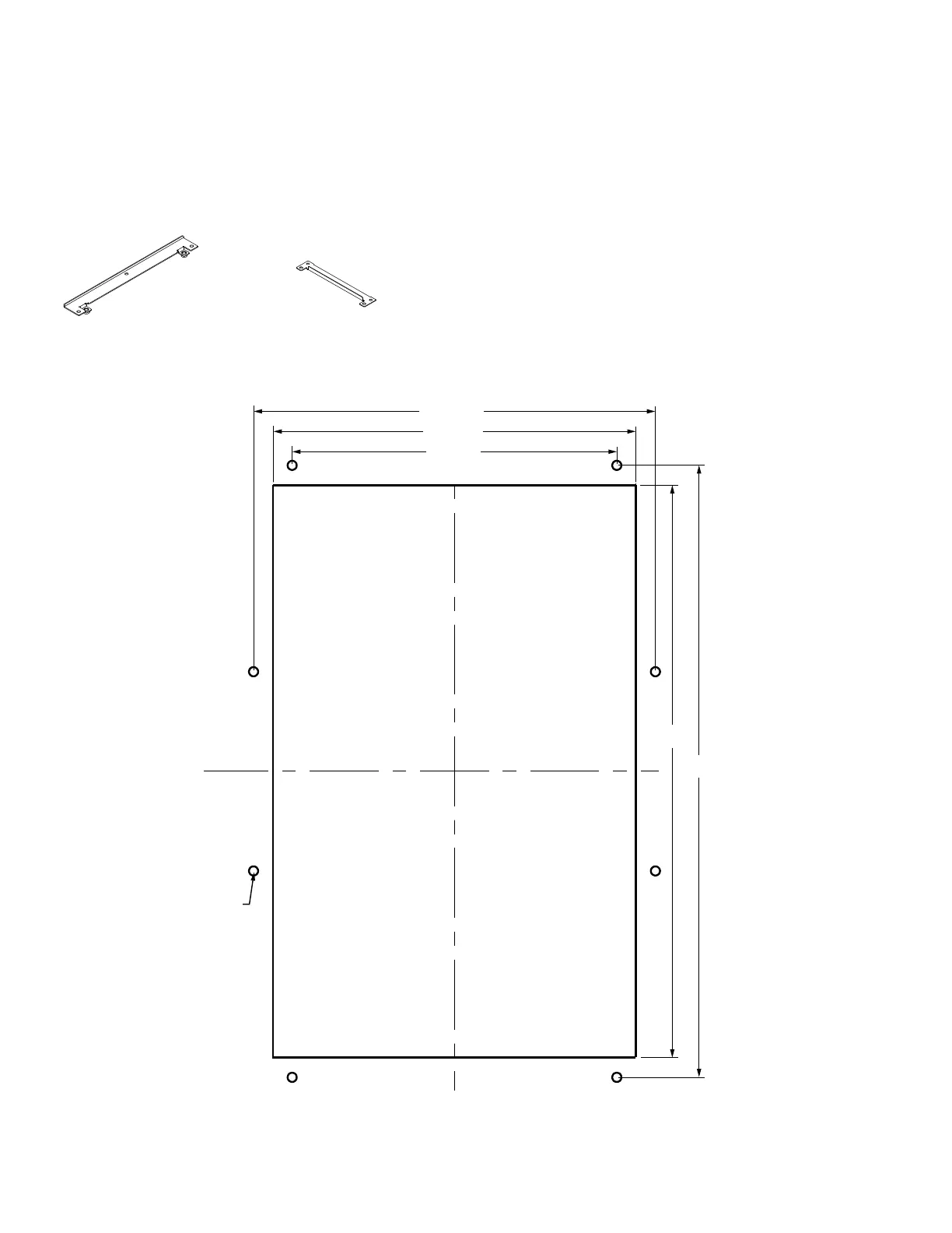
Frame C
Fig. 4. Panel Cutout Diagram Frame C: Unit in in. (mm)
Flange Mounting Kit Frame C
Corresponding models: All Frame C models
M33374
M33380
Side Bracket 2 each
Side Bracket 2 each
Screw 1 *4 pieces ~ M8*P 1.25;
Screw 2*8 pieces ~ M6*P 1.0
[8] M6*1.0 OR
[8] Ø17/64 (Ø7)
M33381
9-3/32 (231)
10-5/32 (258)
11-17/64 (286)
15-53/64
(402)
16-15/16
(430)

Related product manuals