EasyManua.ls Logo

HUBBELL LIGHTING CX - Page 5

HUBBELL LIGHTING CX
41 pages
Print Icon
To Next Page IconTo Next Page
To Next Page IconTo Next Page
To Previous Page IconTo Previous Page
To Previous Page IconTo Previous Page
Loading...
5
Place the enclosure on the mounting surface and use a level to ensure that it is properly oriented and aligned. Secure the
enclosure to the mounting surface with hardware as appropriate for the application using the three keyed mounting holes
located near the top corners and in the center bottom of the enclosure as shown in Figures 2(a) (b).
Figure 2(a) - Enclosure Mounting Holes - 4/8 Panels
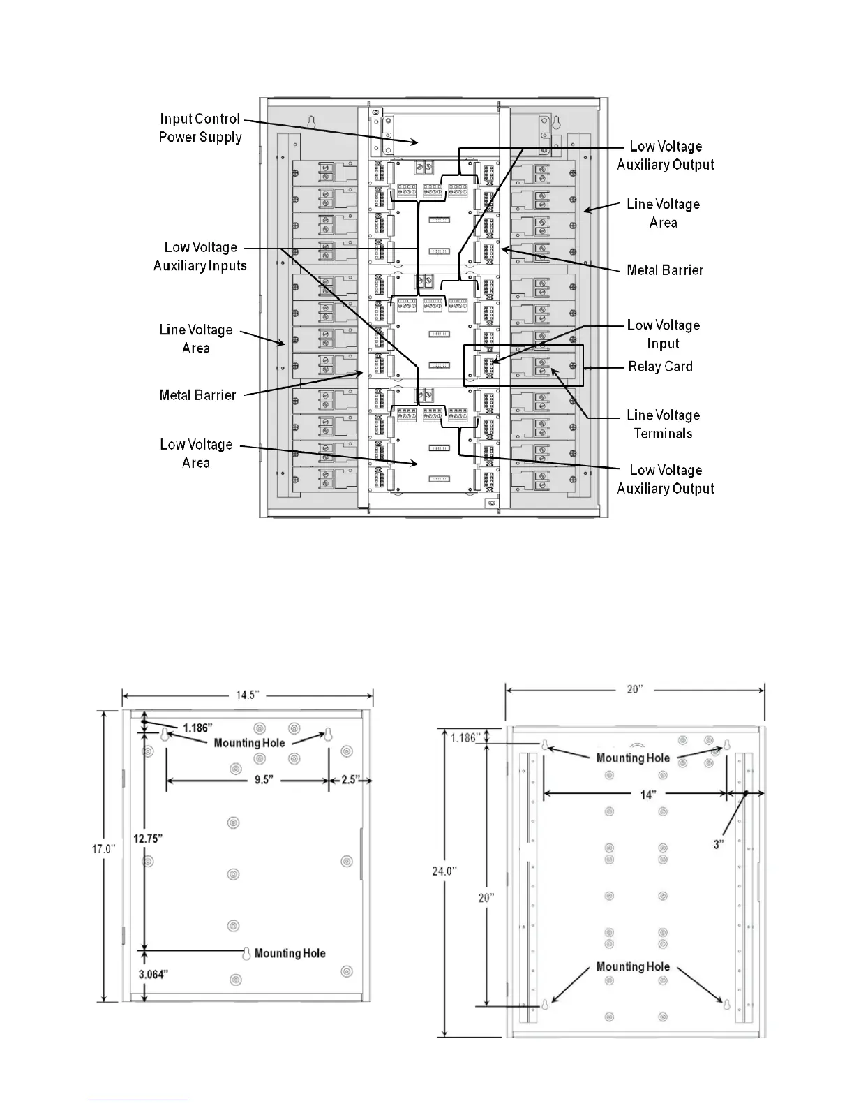
Figure 1(b) – CX16 or 24 Panel Interior
Figure 2(b) - Enclosure Mounting Holes 16/24 Panels

Other manuals for HUBBELL LIGHTING CX