EasyManua.ls Logo

Hyd-Mech S20DSP - Hydraulic Diagram

Hyd-Mech S20DSP
136 pages
Print Icon
To Next Page IconTo Next Page
To Next Page IconTo Next Page
To Previous Page IconTo Previous Page
To Previous Page IconTo Previous Page
Loading...
6--2
46
Use and maintenance manual S20DSP
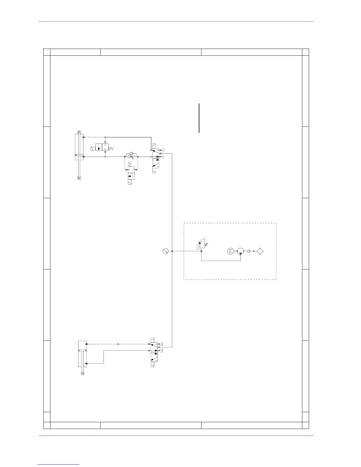
Hydraulic diagram
Automation Studio
ABCDE
ABCDE
1
2
3
1
2
3
LEGENDA:
CPT= CILINDRO PORTA TESTA
CMT= CILINDRO MORSA DI TAGLIO
RDT= REG. DISCESA TESTA
EV BY--PASS= ACCOSTAMENTO RAPIDO
EV RIG= ELETTROV ALVOLA RIGENERATRICE
POMPA= 2,2 cmq/giro
PRESSIONE DI ESERCIZIO= 30 Bar MAX.
MOTORE= 71--B14/0,37KW /1400RPM/230/400-- 50HZ--240/480-- 60HZ
CMT
CENTRALINA IDRAULICA
0
R.D.T.
CPT
EVB BY--PASS
EVB RIG
EVM
EVT

Table of Contents