EasyManua.ls Logo

IAI RCM-P6GW - Page 268

Default Icon
286 pages
Print Icon
To Next Page IconTo Next Page
To Next Page IconTo Next Page
To Previous Page IconTo Previous Page
To Previous Page IconTo Previous Page
Loading...
10. Appendix
Fieldbus Communication
256
RCP6
S
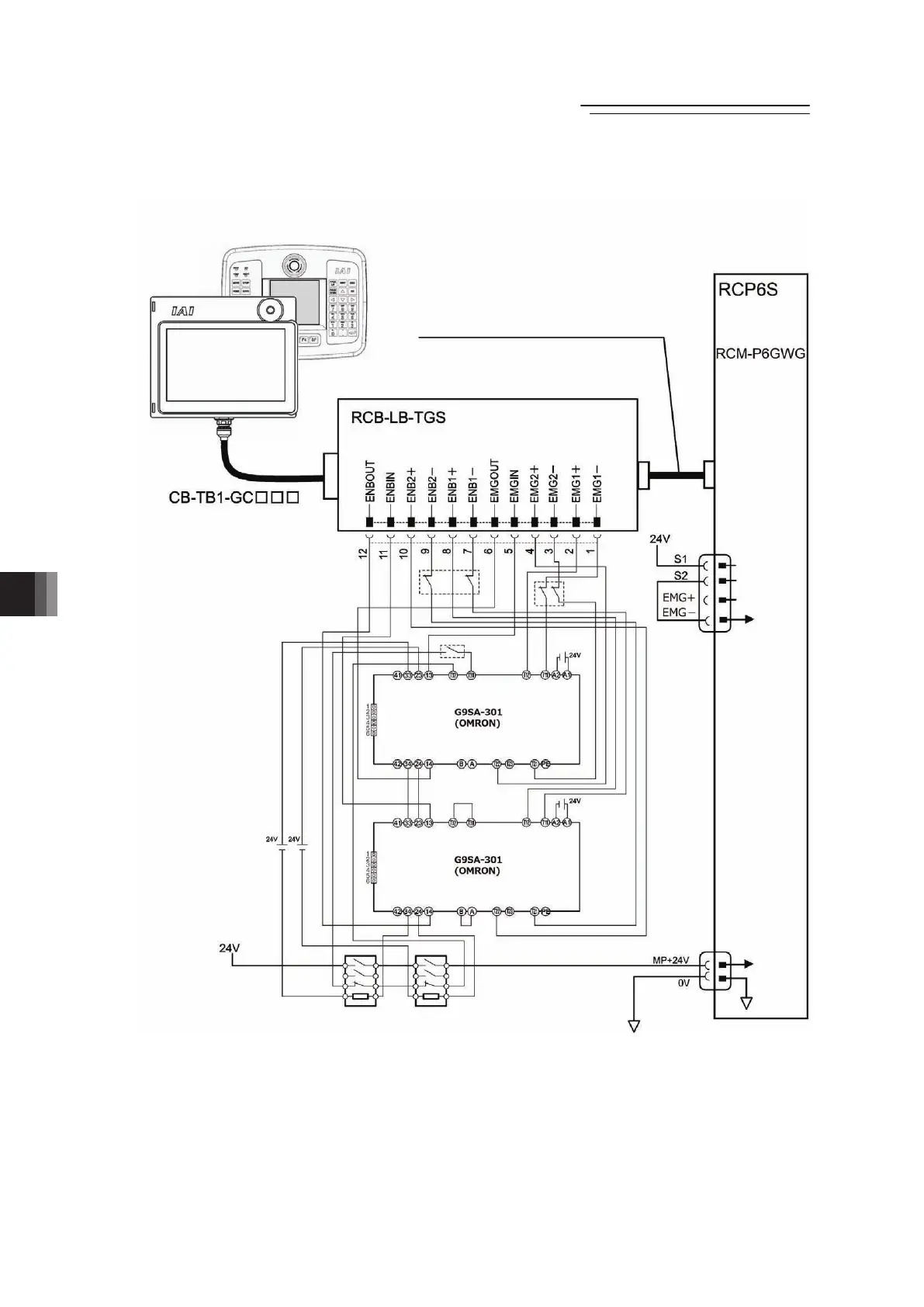
3) In case of category 3
Solenoid Contactor Solenoid Contactor
Enable SW
Reset SW
Emergency
Stop SW
System I/O
Connector
Motor
Power
Supply
Motor Power
Supply
Connector
TB-02D or TB-01D/TB-01DR
(or Dummy plug : DP-4S)
Connection Cable CB-CON-LB□□□
Gateway
Unit
TP Adaptor for the Position Controller
SIO Connector
ME0349-4B

Table of Contents

Other manuals for IAI RCM-P6GW

Related product manuals