EasyManua.ls Logo

IDEAL Logic Code Combi ES26 - Page 10

IDEAL Logic Code Combi ES26
66 pages
Print Icon
To Next Page IconTo Next Page
To Next Page IconTo Next Page
To Previous Page IconTo Previous Page
To Previous Page IconTo Previous Page
Loading...
10
Ideal Logic Code Combi ES -
Installation and Servicing
gENERaL
1
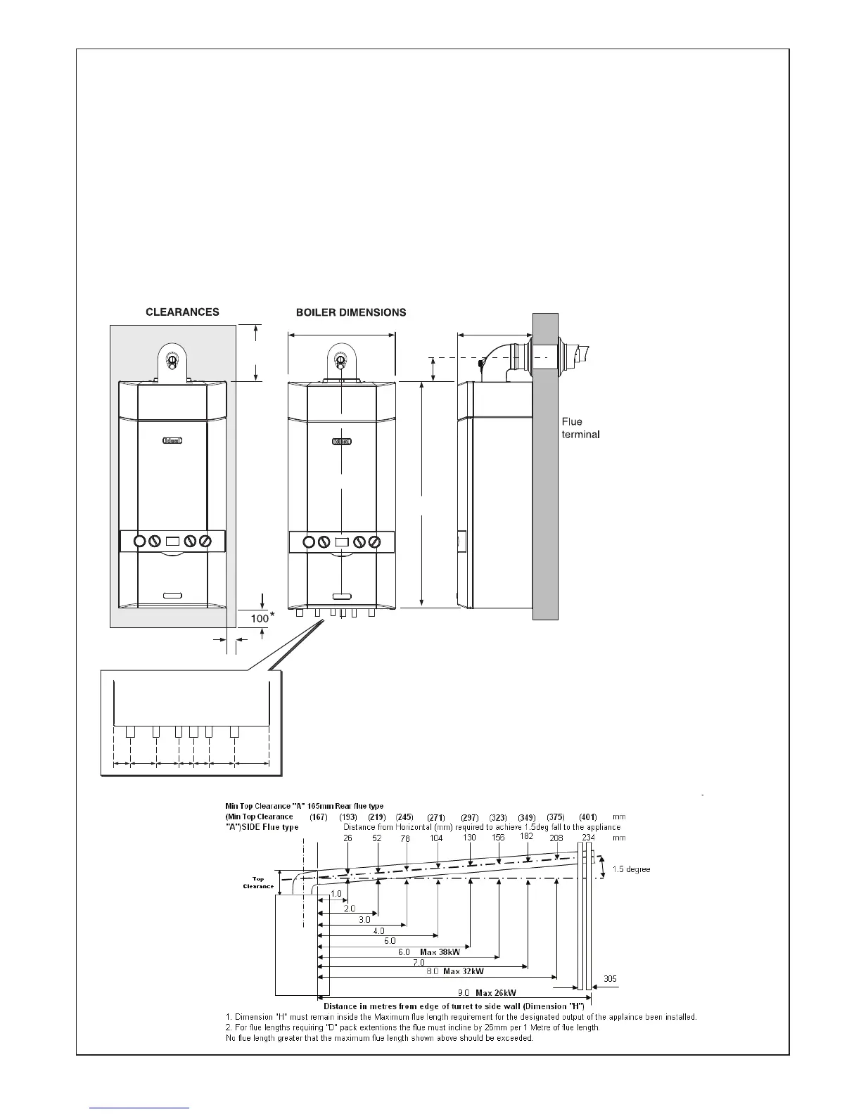
BOILER DIMENsIONs, sERVICEs & CLEaRaNCEs
all dimensions in mm


The following minimum clearances must be maintained for
operation and servicing.
Additional space will be required for installation, depending upon

side and Rear Flue
a. 


space into which the boiler is going to be installed is less


*Bottom clearance


the consumer to view the system pressure gauge, and to provide

Front clearance

from the cupboard door but 450mm overall clearance is still

Rear Flue Only

395 278
76
830
Side flue
dim. A
2.5 from case
43 65 57 38 39 65 88
CH Flow
DHW Outlet
Gas Inlet
Condensate
DHW Inlet
CH Return
Connections
Front clearance

from the cupboard door but 450mm overall clearance is still

* Bottom clearance


enable the consumer to view the system pressure gauge,


Other manuals for IDEAL Logic Code Combi ES26

Related product manuals