EasyManua.ls Logo

IDEAL Logic Code Combi ES26 - Gas Boiler System Commissioning Checklist

IDEAL Logic Code Combi ES26
66 pages
Print Icon
To Next Page IconTo Next Page
To Next Page IconTo Next Page
To Previous Page IconTo Previous Page
To Previous Page IconTo Previous Page
Loading...
* All installations in England and Wales must be to Local Authority Building Control (LABC) either directly or through a
Competent Persons Scheme. A Building Regulations Compliance
will then be issued to the customer.
www.centralheating.co.uk
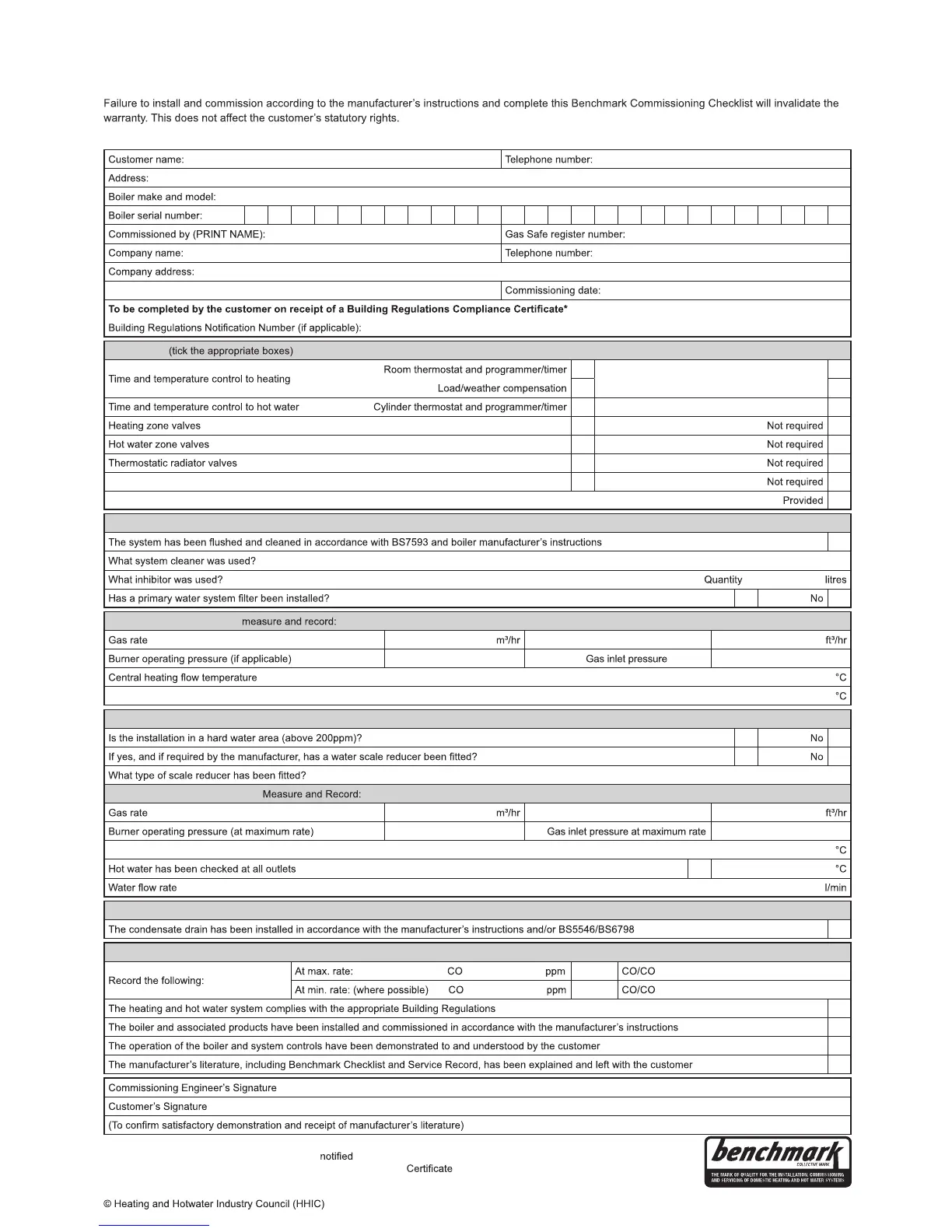
This Commissioning Checklist is to be completed in full by the competent person who commissioned the boiler as a means of demonstrating
compliance with the appropriate Building Regulations and then handed to the customer to keep for future reference.
gas BOILER sysTEM COMMIssIONINg ChECKLIsT
CONTROLs
Programmable room thermostat
Optimum start control
Combination Boiler
Fitted
Fitted
Fitted
Automatic bypass to system Fitted
Boiler interlock
aLL sysTEMs
Yes
Yes
CENTRaL hEa TINg MODE
OR
mbar OR mbar
Central heating return temperature
COMBINaTION BOILERs ONLy
Yes
Yes
DOMEsTIC hOT WaTER MODE
OR
mbar OR mbar
Cold water inlet temperature
Yes Temperature
CONDENsINg BOILERs ONL y
Yes
aLL INsTaLLa TIONs
aND
²
Ratio
aND
²
Ratio
Yes
Yes
Yes
Yes
www.centralheating.co.uk

Other manuals for IDEAL Logic Code Combi ES26

Related product manuals