EasyManua.ls Logo

ILLKO MDtest - Other Leakage Currents; Alternative Method (IaltEq) for Other Leakage; PE;Differential Current (IdirEq;IdifEq)

Default Icon
74 pages
Print Icon
To Next Page IconTo Next Page
To Next Page IconTo Next Page
To Previous Page IconTo Previous Page
To Previous Page IconTo Previous Page
Loading...
MDtest (100-140 V) - User’s Manual 4 Measurements
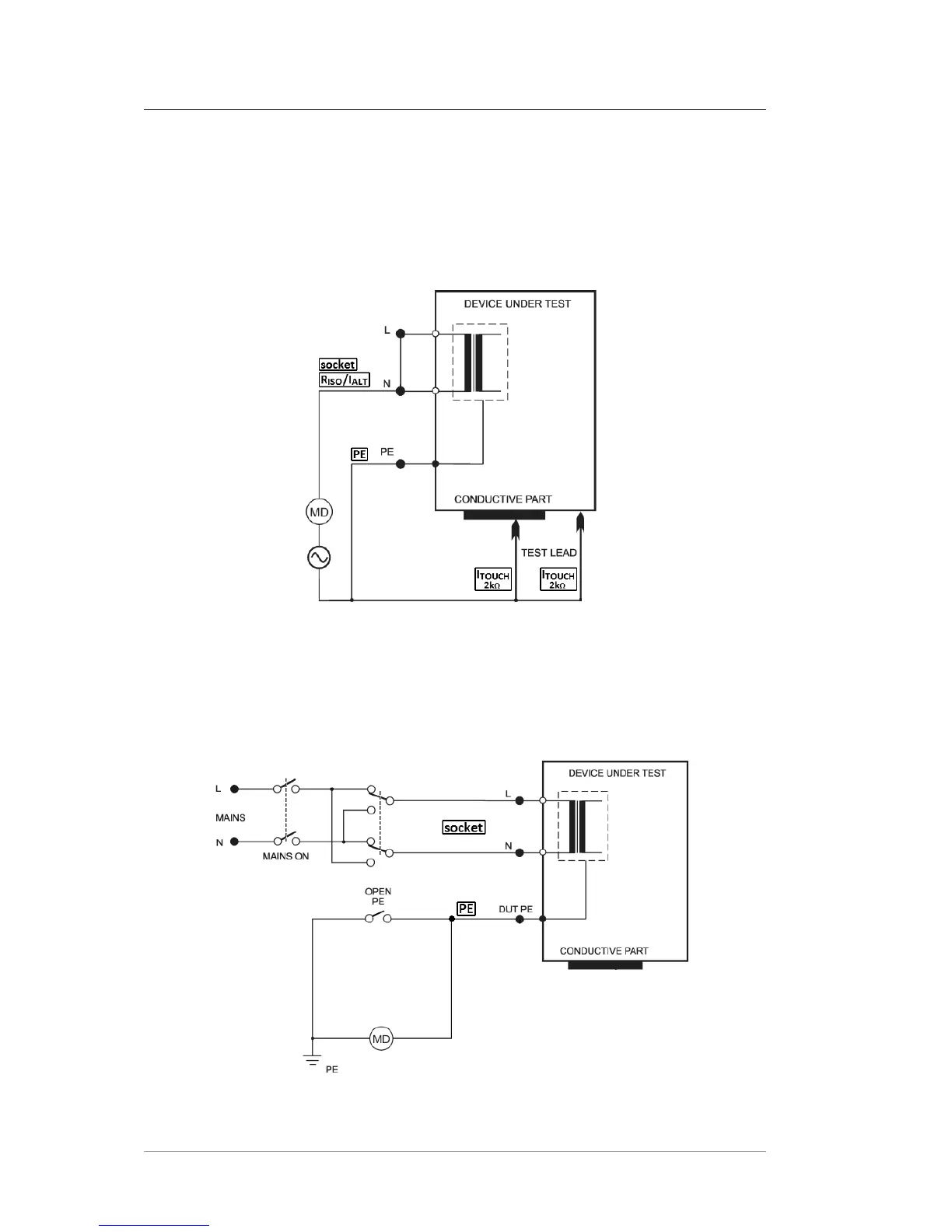
4.8 Other leakage currents
4.8.1 Alternative method - IaltEq
The measuring method is similar to Alternative method - IaltEq (chapter 4.5.1), but
the applications parts are not connected. The test lead connect to the ITOUCH 2k
terminal.
Figure 18: IaltEq measurement
4.8.2 PE current during operation IdirEq / differential leakage current
- IdifEq
Figure 19: IdirEq measurement
c
2018 ILLKO, s.r.o. www.illko.cz Page 39

Table of Contents