EasyManua.ls Logo

INVT DA180-S5R0SG0

INVT DA180-S5R0SG0
316 pages
To Next Page IconTo Next Page
To Next Page IconTo Next Page
To Previous Page IconTo Previous Page
To Previous Page IconTo Previous Page
Loading...
DA180 series basic AC servo drive Commissioning
-233-
Position loop gain too high
In the position servo system, the position loop gain also impacts stableness. If the position loop gain
is too high, the motor speed fluctuates. According to the comparison with the case of position loop
gain too low, the delay with which the motor speed follows up the position command is decreased in
this case.
Position loop gain too low
If the position loop gain is too low, the motor speed lags behind the position command noticeably, and
positioning time is prolonged. The accuracy and response performance of the positioning system are
impacted seriously.
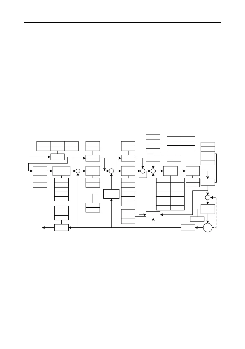
7.2.1 Adjusting gains in position mode
Semi-closed loop
The following block diagram illustrates semi-closed loop control for DA180 servo drive and lists the
adjustable gain parameters in this control mode.
Current
controller
Position command
P2.10
P2.11
P2.02
P2.07
P1.29
P1.30
P2.04
P1.31
P1.32
P2.03
P1.33
P1.34
P2.09
P2.08
P2.12
P2.13
P2.42
P2.43
P1.23
P1.24
P1.25
P1.26
P1.27
P1.28
P1.19 P1.20
P2.20
P2.22
P2.71
P2.72
P2.73
P2.24
P2.25
P2.23 P2.26
P0.09
P0.10
P0.11
P4.53
P4.51
P4.52
P0.27
P0.28
P0.29
P0.33
P0.34
P1.35
P1.36
P0.25
P0.26P0.22
P1.37
P1.38
P1.39
P2.70
P2.41
Encoder
Torque limit
Torque filterNotch filter
Gain
switching
Friction
compensation
Torque
feedforward
Speed
controller
Speed
feedforward
P2.00
P2.01
P1.02
P1.01
P2.06
P2.05
Disturbance
control
Speed
detection filter
P0.06
P0.07
P0.08
Frequency
division output
Position command
vibration control
Position
smoothing filter
Position
controller
Electronic
gear
Motor
Fully-closed loop
The following block diagram illustrates fully-closed loop control for DA180 servo drive and lists the
adjustable gain parameters in this control mode.

Table of Contents

Related product manuals