EasyManua.ls Logo

INVT SV-DA200-2R0-4 - 3 Wiring Instruction; System Wiring

INVT SV-DA200-2R0-4
300 pages
Print Icon
To Next Page IconTo Next Page
To Next Page IconTo Next Page
To Previous Page IconTo Previous Page
To Previous Page IconTo Previous Page
Loading...
SV-DA200 series AC servo drive Wiring instruction
-32-
3 Wiring instruction
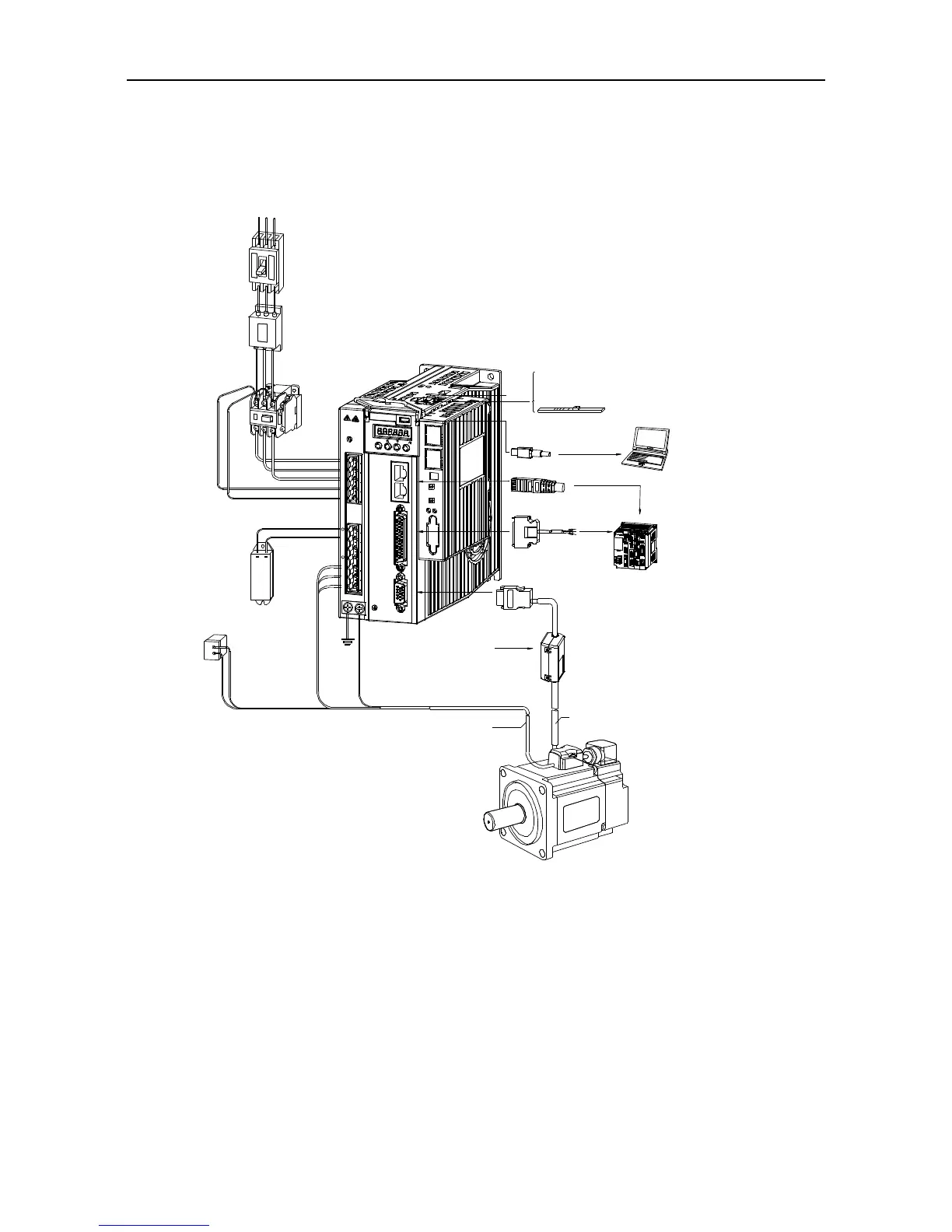
3.1 System wiring
L1 L 2 L3
Electromagnetic
contactor
Turn on/off servo
pow er.
Please install surge
suppressor duing
usage.
Breaker
Power
ST O
sw itch
PC connection cable
PC
C
N
CHAR GE
SE T
MODE
4
L2
L1
L1C
L3
3
N
C
CAN/485 communication
Grating ruler or the second encoder
Signal cable (I/O)
Upper device
L2C
+
N
C
-
B3
U
V
B2
1
C
N
2
W
Encoder signal
Safety input signal is valid
and correct wiring is needed
when S TO safety function is
not used, namely S TO is not
set to O N .
Safety input term inal signal is
invalid and w iring is not needed
when S TO safety protection
function is used, nam ely w hen
STO switch is set to ON
Encoder connection cable
Main circuit cable of motor
Servo motor
Battery unit
when absolute encoder is used
Brake power
DC 24V, provided by the user
Regenerative
brake resistor
Noise filter
Prevent the noise outside
the power cable
Used to cut off the circuit
when power cable flow s
through overcurrent
Check to ensure the input power supply indicated on the nameplate is the same as that of the
grid before connecting the input power supply of the drive.
The electromagnetic contactor is used to switch on/off the power supply of the main circuit of
the servo drive. Do not use it to start/stop the servo drive.
In the above figure, the external regenerative brake resistor is connected, and the short
connection wire between B2 and B3 should be removed, refer to chapter 3.2 for details. The
external regenerative brake resistor must be installed on flame-resistance material which has good
cooling effect eg metal.

Table of Contents

Related product manuals