EasyManua.ls Logo

Italtherm CITY BASIC - Electrical Diagram

Italtherm CITY BASIC
40 pages
Print Icon
To Next Page IconTo Next Page
To Next Page IconTo Next Page
To Previous Page IconTo Previous Page
To Previous Page IconTo Previous Page
Loading...
37
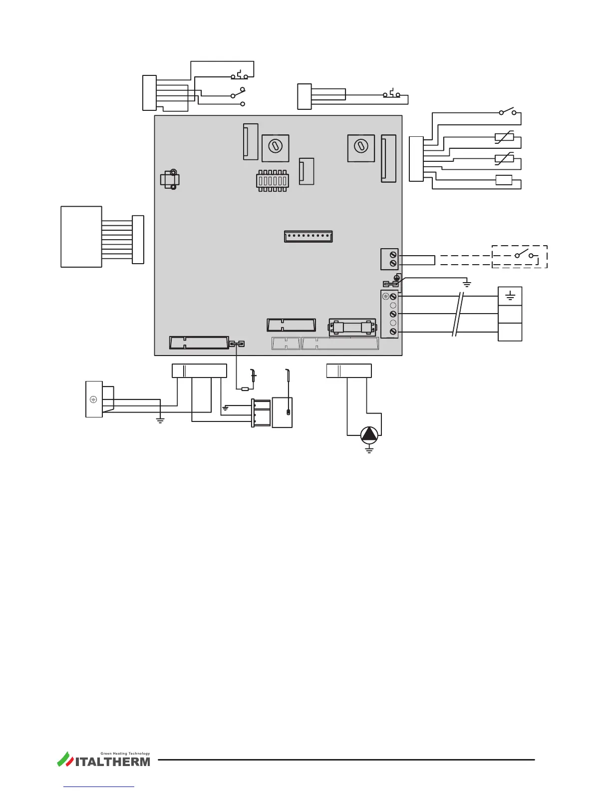
Electrical diagram
MOD
3
4
2
1
00035 INT 01
8
75
27
13
6
17
18
25
BN
BU
GN
WH
YE
YE-GN
BU
BN
WH
11.2
30
11.1
28
46 47
M10
M4
M9M11
M5
M1
NC
NO
3
16
M2
9
8
7
10
BK
WH
WH
OG
OG
GN
BK
GY
GY
BK
GN
BU
BU
YE-GN
BN
BU
YE-GN
BK
RD
RD
1
BK
N
L
42 43 44 45
5048 49 51 52
5048 49 51 52
40
41
59 60 61 62 63 64 65
7677
7879
42 43 44 45
21
22
25
24
23
28
27
26
21
22
25
24
23
28
27
26
3
2
1
6
5
4
9
8
7
10
3
2
1
6
5
4
M8
M7
S1
TF1
M11
M4
M1
M2
P1
M17
P2
TF2
M13
M5
M9
L
N
1 Flue thermostat (*)
3 Safety thermostat for
max. water temperature (*)
5 Ignion electrode
6 DHW temperature sensor
7 Flame sense electrode
8 Electronic igniter
Gas valve - modulaon control
Gas valve - opening control
13 Priority ow switch (*)
16 Loss of water pressure switch (*)
17 Pump
18 Heang circuit temperature sensor
25 Display board
27 Fuse F2A (2A fast)
Oponal external devices:
28 Room thermostat:
Voltage-free Contact for Room
Thermostat or Chronothermostat (for trade) working at
safety extra low voltage SELV. Closed contact = heang
request.
Remote control: Terminals of the original remote
control device. See also page 39. To install, remove
the jumper from the M7 terminals and connect the
device to them.
30 Connector for CH mul zones PCB kit
Abbreviaons:
 Black
BN Brown
BU Blue
Green
 Grey
Orange
RD Red
VT Violet
WH
White
YE Yellow
Common
Normally closed
Normally open
(*) the contacts of these components are shown in rest condions (cold condion, no system pressure, no ow)

Table of Contents

Related product manuals