EasyManua.ls Logo

Jackson Avenger LT - Avenger HT Dimensions

Jackson Avenger LT
65 pages
Print Icon
To Next Page IconTo Next Page
To Next Page IconTo Next Page
To Previous Page IconTo Previous Page
To Previous Page IconTo Previous Page
Loading...
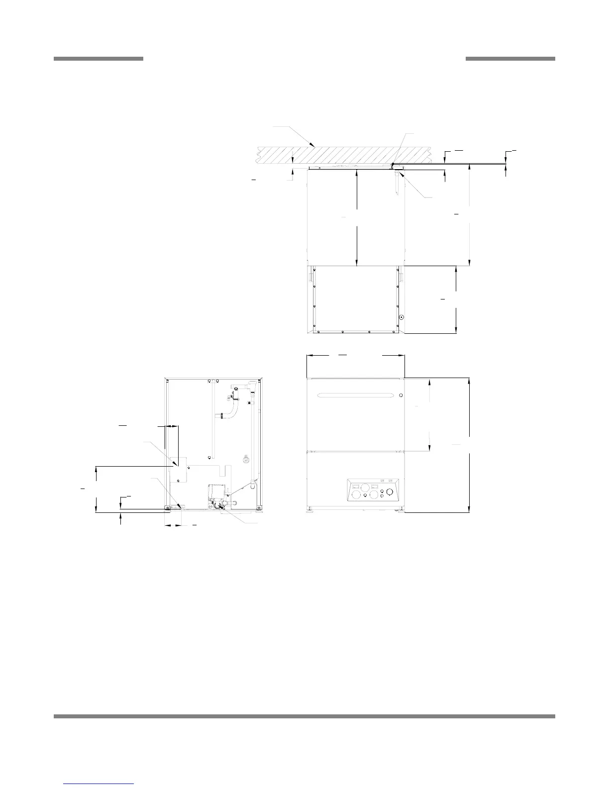
Door Open
24
3
16
[615mm]
33
5
16
[846mm]
TOP
FRONT
LEGEND:
A - Water Inlet - 1/2" Female Pipe Thread,
2 1/2" AFF (Connect to a true 1/2" ID
water line)
B - Electrical Connection
C - Drain Connection - 10' coiled drain hose.
Shipped inside machine. Must be installed
no more than 24" AFF.
All dimensions from floor can be increased
1" with adjustable feet supplied.
WALL
14
1
2
" [368mm]
DISH
CLEARANCE
25
3
8
[644mm]
16
5
8
[423mm]
1
9
16
[40mm]
A
1
1
4
[32mm]
B
23
3
4
[604mm]
A
BACK
B
4
1
8
[105mm]
11
1
2
[292mm]
7
8
[22mm]
3
5
16
[84mm]
1
4
[6mm]
Minimum
C
Wall Clearance
Avenger Series Technical Manual 7610-003-34-01
Issued: 10-07-2007 Revised: N/A
SECTION 1: SPECIFICATION INFORMATION
AvengerHT DIMENSIONS
4
*All dimensions are for reference only and are subject to change without notice.

Table of Contents

Related product manuals