EasyManua.ls Logo

Jackson WAREFORCE UH 30 - UL 30 Dimensions

Jackson WAREFORCE UH 30
57 pages
Print Icon
To Next Page IconTo Next Page
To Next Page IconTo Next Page
To Previous Page IconTo Previous Page
To Previous Page IconTo Previous Page
Loading...
10
Page Created: 03-28-2011
Revised: 03-11-2013
WAREFORCE UH/UL 30 Technical Manual (07610-003-67-21)
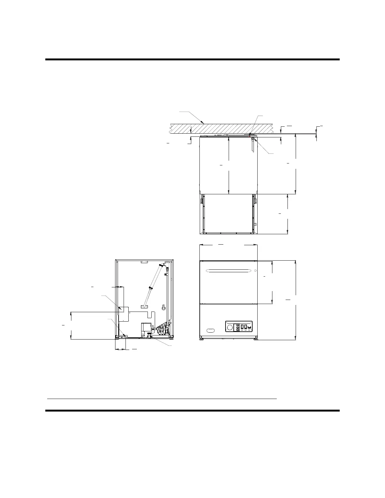
WAREFORCE™ UL 30 DIMENSIONS
*All dimensions are for reference only and are subject to change without notice.
24
3
16
[615mm]
33
5
16
[846mm]
FRONT
13
1
2
" [343mm]
DISH
CLEARANCE
LEGEND:
A - Water Inlet - 1/2" Female Pipe Thread,
2 1/2" AFF (Connect to a true 1/2" ID
water line)
B - Electrical Connection
C - Drain Connection - 10' coiled drain hose.
Shipped inside machine. Must be installed
no more than 24" AFF.
All dimensions from floor can be increased
1" with adjustable feet supplied.
Door Open
TOP
WALL
25
3
8
[644mm]
16
5
8
[423mm]
1
9
16
[40mm]
A
1
1
4
[32mm]
B
23
3
4
[604mm]
1
4
[6mm]
Wall Clearance
C
BACK
B
3
1
2
[89mm]
11
1
2
[292mm]
A
4
5
16
[110mm]

Related product manuals