EasyManua.ls Logo

KEEWAY ATV250 - The Process of Debugging of Battery; Testing of Wiring Diagram

KEEWAY ATV250
97 pages
Print Icon
To Next Page IconTo Next Page
To Next Page IconTo Next Page
To Previous Page IconTo Previous Page
To Previous Page IconTo Previous Page
Loading...
70
T h e p r o c e s s o f d e b u g g i n g o f b a t t e r y
Disassemble the battery from the body tie anode and cathode of battery to the red(+) black(-)
leads of the debugger. Measure the voltage of the battery, it may be 12~14.5V normally. Press the button of the acbugger
and get the reading of the coltametre, the woltage of the battery can’t be less than 9V, it shows that this battery can be
capable of starting the engine. Check the propotion of the electrolyte, each one can’t be lower than 1.220. Otherwise
electrificate it, In addition, loading testing is double.
Scrap of battery: The voltage of it is lower than 9.5V, and the proportion of one or more is lower than 1.220.
Open the electrocircuitAvoid quick electrificate.
Replace it if the circs happen unluckly.
Battery’s debugger for advisementManufacturerELAK TypeBCT7.
Warning: Do check the electrifical electrocircuit before change the bad battery
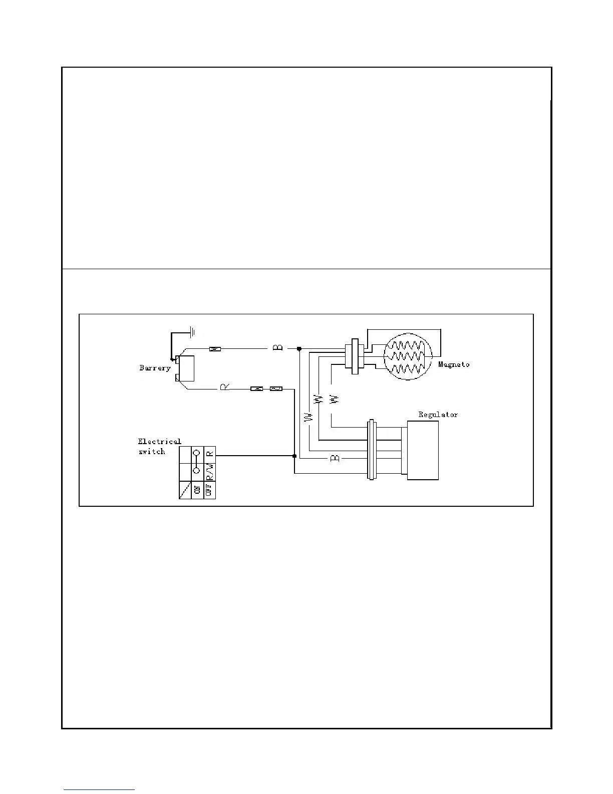
Testing of wiring diagram
Alternating current produced by magneto is commutated to DC, it electrificates autoly according to the battery’s
condition, for the is in the plan in parallel connection, the system called “Parallel fixing booster”.
Connect DC voltmeter and amperometer in the electrocircuit plan above, use full battery to start the engine.
The output of regulator as down below:
1The electrification current is among 0.6A~2A
2The rotate speed should be master less than 5000 RPM, with the front light ttubing on
3The electrification voltage of the battery’s terminal should be more than 11.5V when the assembly goes on.
NOTE
If the output current of the electrificationis less than 0.6A or more than 2A, please change a new regulator then
chenk again.
NOTE
Connect the amperometer onto the anode of the battery in series to measure the DC current..
Connect the coltmeter onto the anode and cathode of the battery to measure the voltage of the DC.

Table of Contents

Related product manuals