EasyManua.ls Logo

Kidde IG-55 - CYLINDER BANK INSTALLATION; Location; Typical Foot Print

Kidde IG-55
220 pages
Print Icon
To Next Page IconTo Next Page
To Next Page IconTo Next Page
To Previous Page IconTo Previous Page
To Previous Page IconTo Previous Page
Loading...
System Design
April 2020 3-14 06-237619-001
3-10 CYLINDER BANK INSTALLATION
3-10.1 Location
The cylinders and associated racking components shall be located and installed according to
the relevant cylinder bank assembly layout. There is no restriction with regard to positioning
the cylinders horizontally or vertically.
Note: As an 80 liter cylinder has a minimum weight of approximately 266.8 lbs (121 kg) at
200 bar and a maximum weight of approximately 317.5 lbs (144 kg) at 300 bar, it is
vital to check that the floor is capable of supporting the total load.
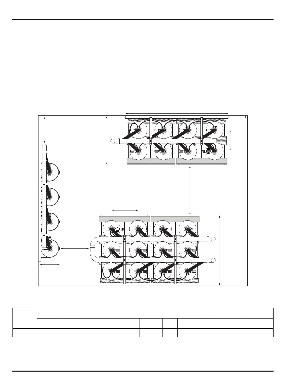
3-10.2 Typical Foot Print
Figure 3-2. Typical Footprint of a Kidde IGS
Cylinder
Size
Dimensions (inches)
AB C DE FGH IJ
80 L MIN 9.5 29.1 ([NO Cyl -1] x 12.0) + 11.8 MIN 9.8 12.2 MIN 31.5 12.0 MIN 31.5 13.4 41.3
A
H
I
G
B
F
J
E
D
C

Table of Contents

Related product manuals