EasyManua.ls Logo

KITO ER2 - Page 138

KITO ER2
164 pages
Print Icon
To Next Page IconTo Next Page
To Next Page IconTo Next Page
To Previous Page IconTo Previous Page
To Previous Page IconTo Previous Page
Loading...
138
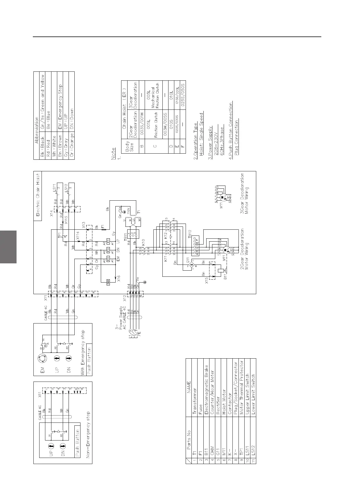
Technical Material (continued)
Appendix
A
Technical Material
230/460V class (208-230V) (Plug Connection)

Table of Contents

Related product manuals