EasyManua.ls Logo

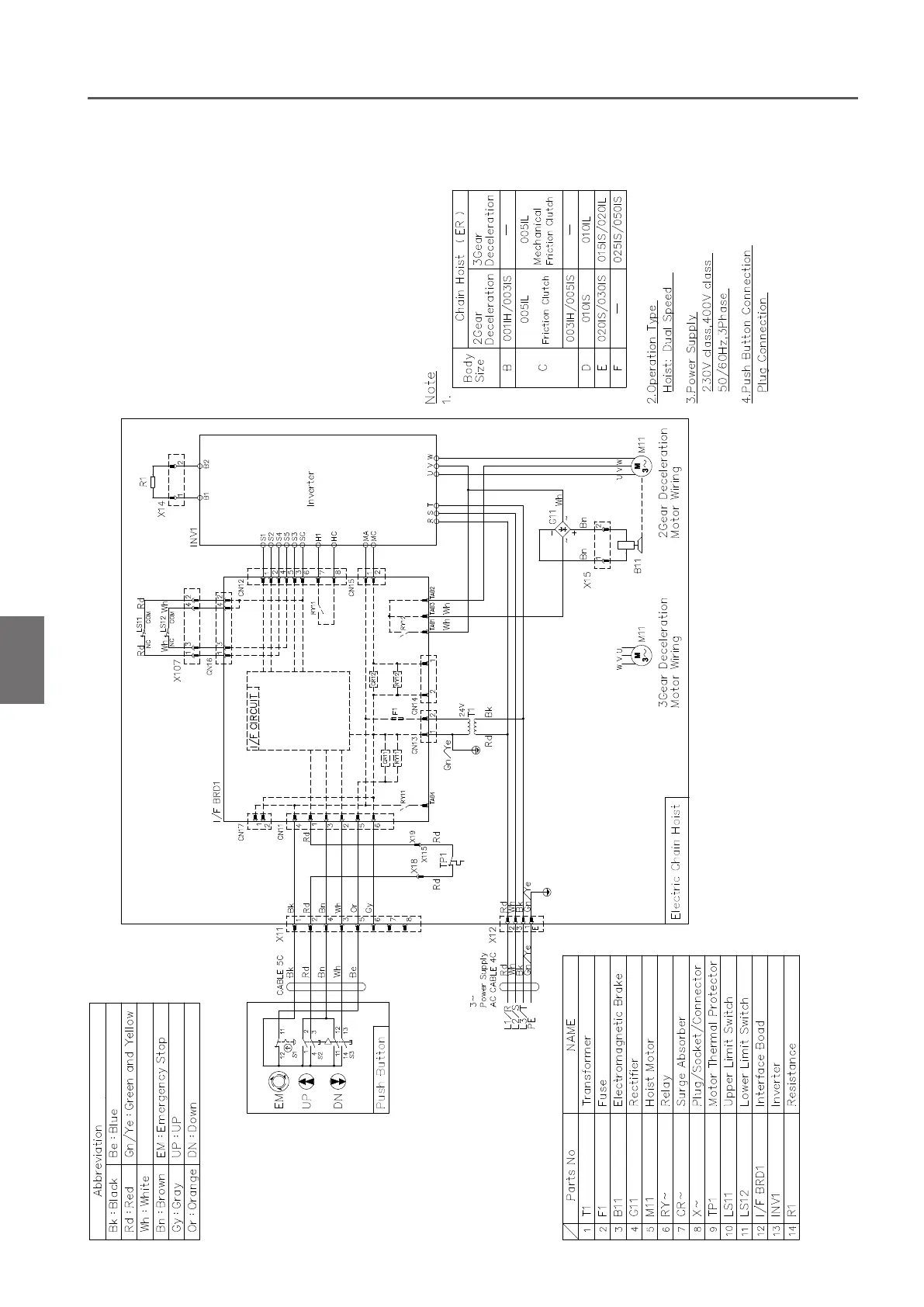
KITO ER2 - Wiring Diagram of Dual Speed ER2

KITO ER2
164 pages
Print Icon
To Next Page IconTo Next Page
To Next Page IconTo Next Page
To Previous Page IconTo Previous Page
To Previous Page IconTo Previous Page
Loading...
140
Technical Material (continued)
Appendix
A
Technical Material
Wiring Diagram of Dual Speed ER2
230V class , 400V clas (Plug Connection)

Table of Contents

Related product manuals