EasyManua.ls Logo

KMB NOVAR-1007 - Page 72

Default Icon
77 pages
Print Icon
To Next Page IconTo Next Page
To Next Page IconTo Next Page
To Previous Page IconTo Previous Page
To Previous Page IconTo Previous Page
Loading...
Novar 1xxx KMB systems
72
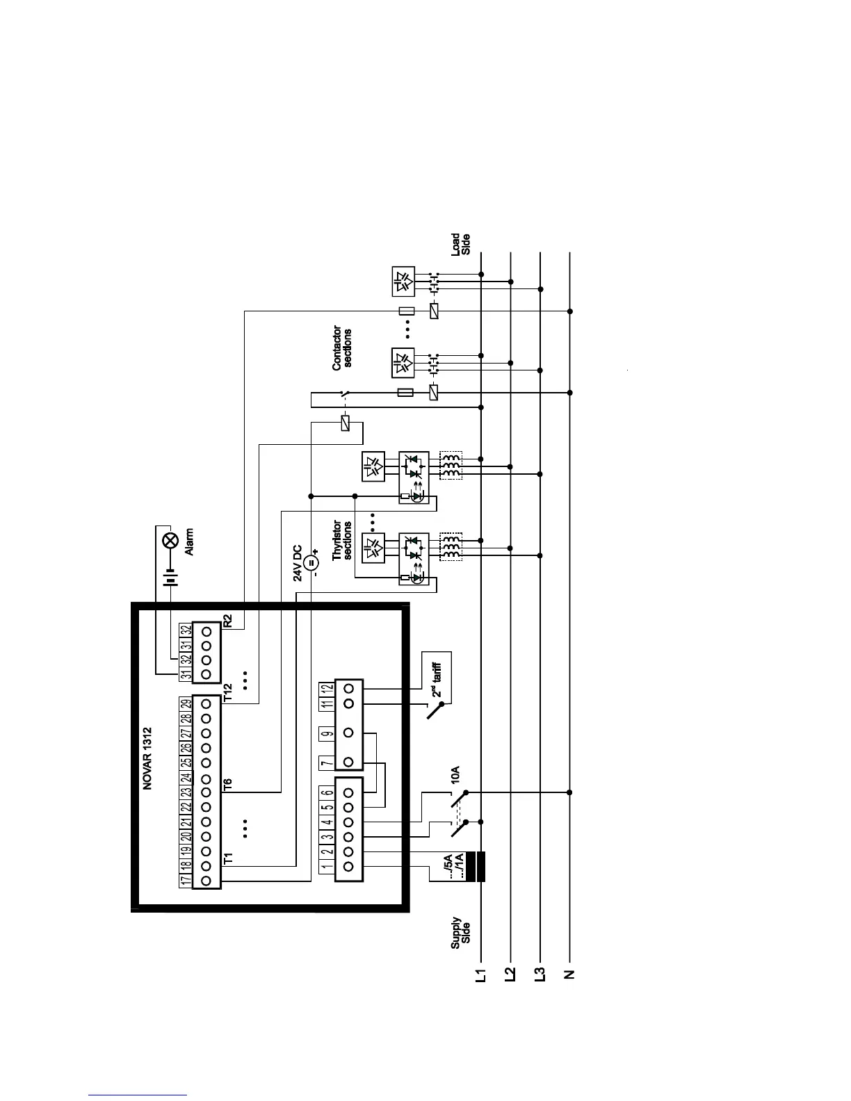
Novar1312 – installation, hybrid system with both thyristor
switches and contactors

Table of Contents

Related product manuals