EasyManua.ls Logo

KSB PumpDrive - Page 32

KSB PumpDrive
162 pages
Print Icon
To Next Page IconTo Next Page
To Next Page IconTo Next Page
To Previous Page IconTo Previous Page
To Previous Page IconTo Previous Page
Loading...
Table 18: Cable cross-sections of control terminals
Control terminal Core cross-section Maximum cable diameter
[mm]
Rigid and flexible cores
[mm
2
]
Flexible cores with wire end
sleeves
[mm
2
]
P4 terminal strip 0,2-1,5 0,75
9,5
30)
P7 terminal strip 0,2-2,5 0,25-1,5
GN D P 4
DI6
DI5
DI4
DI3
DI2
DI1
+24V
AGND
AN-OUT
1098765432
1 2019181716151413
12
11
SB1_GND
SB1 +
SB1 -
SB1_GND
SB1 +
SB1 -
SB1 Z-
SB1 Z+
ABNG P7
AIN1
GND
AIN2
+24V
NO2
COM2
NO1
COM1
10
9
31
2 4 5 6 7 8
P4
P7
P8
P5
P9
P6
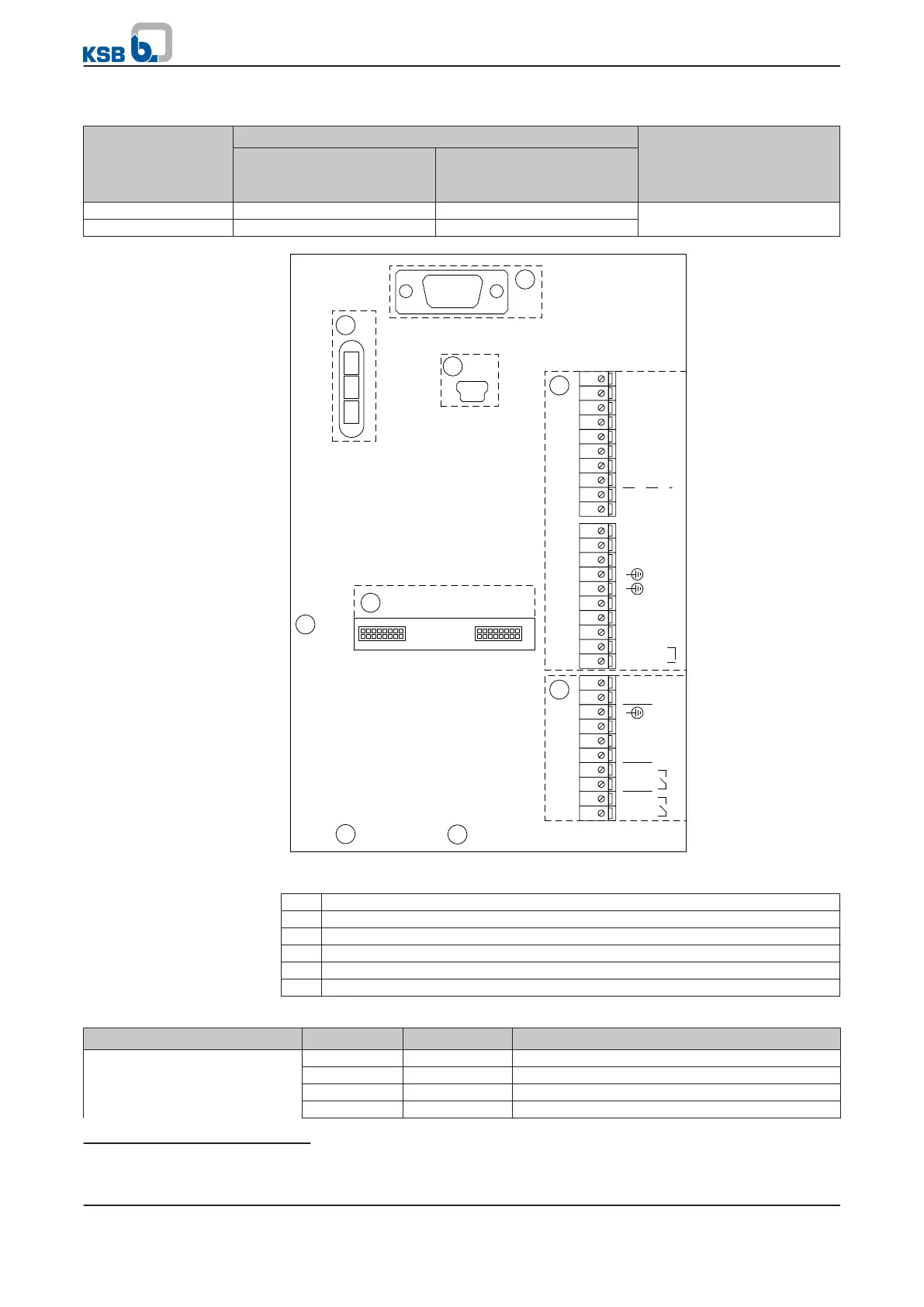
Fig. 17: Control terminals
P4 P4 terminal strip
P5 Service interface: RS232
P6 LED traffic light function
P7 P7 terminal strip
P8 Field bus module connection panel
P9 Display connection
Table 19: Control terminal assignment, P4 terminal strip
Terminal strip Terminal Signal Description
20 0V Ground for +24 V
19 DIG IN6 Digital input (15/28 V DC)
18 DIB-IN5 Digital input (15/28 V DC)
17 DIG-IN4 Digital input (15/28 V DC)
30)
Impairment of protection provided by enclosure when cable diameters other than those specified are used.
5 Installation at Site
32 of 162
PumpDrive

Table of Contents

Related product manuals