EasyManua.ls Logo

Kyocera ECOSYS M2030dn

Kyocera ECOSYS M2030dn
297 pages
To Next Page IconTo Next Page
To Next Page IconTo Next Page
To Previous Page IconTo Previous Page
To Previous Page IconTo Previous Page
Loading...
2PK/2PL/2PM/2PN-3
1-3-44
U425 Setting: [DP] *: This setting is usually unnecessary.
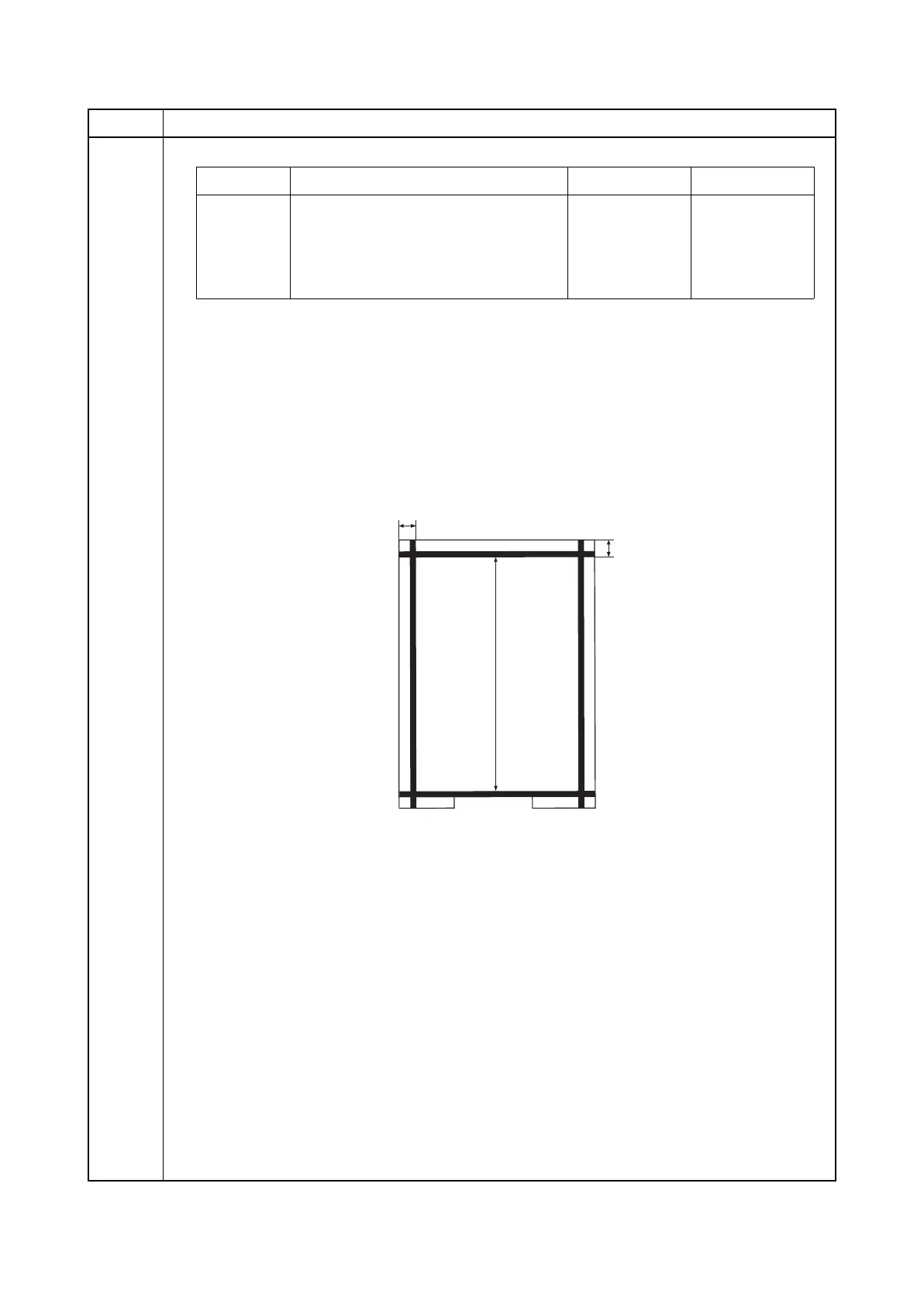
1. Measure the distance from the leading edge to the black belt (inside) of the original at A.
2. Enter the measured value using the cursor right/left keys or numeric keys in [Lead].
3. Measure the distance from the left edge to the black belt (inside) of the original at B.
4. Enter the measured value using the cursor right/left keys or numeric keys in [Main Scan].
5. Measure the distance from the black belt of leading edge (inside) to the black belt of trailing
edge (inside) of the original at C.
6. Enter the measured value using the cursor right/left keys or numeric keys in [Sub Scan].
7. Press the start key. The value is set.
Figure 1-3-16
Completion
Press the stop key. The screen for selecting a maintenance item No. is displayed.
Item No. Description
Display Description Setting range Initial setting
Lead A value of length of detecting the lead-
ing edge.
14.0 to 16.0 15.0
Main Scan A value of width of main scan. 14.0 to 16.0 15.0
Sub Scan A value of length of sub scan. 265.0 to 269.0 267.0
A
C
B
Original for adjustment (P/N: 302NM94330)

Table of Contents

Other manuals for Kyocera ECOSYS M2030dn

Related product manuals