EasyManua.ls Logo

LeeBoy L150 - L250 Trailer Specifications

Default Icon
40 pages
Print Icon
To Next Page IconTo Next Page
To Next Page IconTo Next Page
To Previous Page IconTo Previous Page
To Previous Page IconTo Previous Page
Loading...
TACK DISTRIBUTOR
8
TACK DISTRIBUTOR
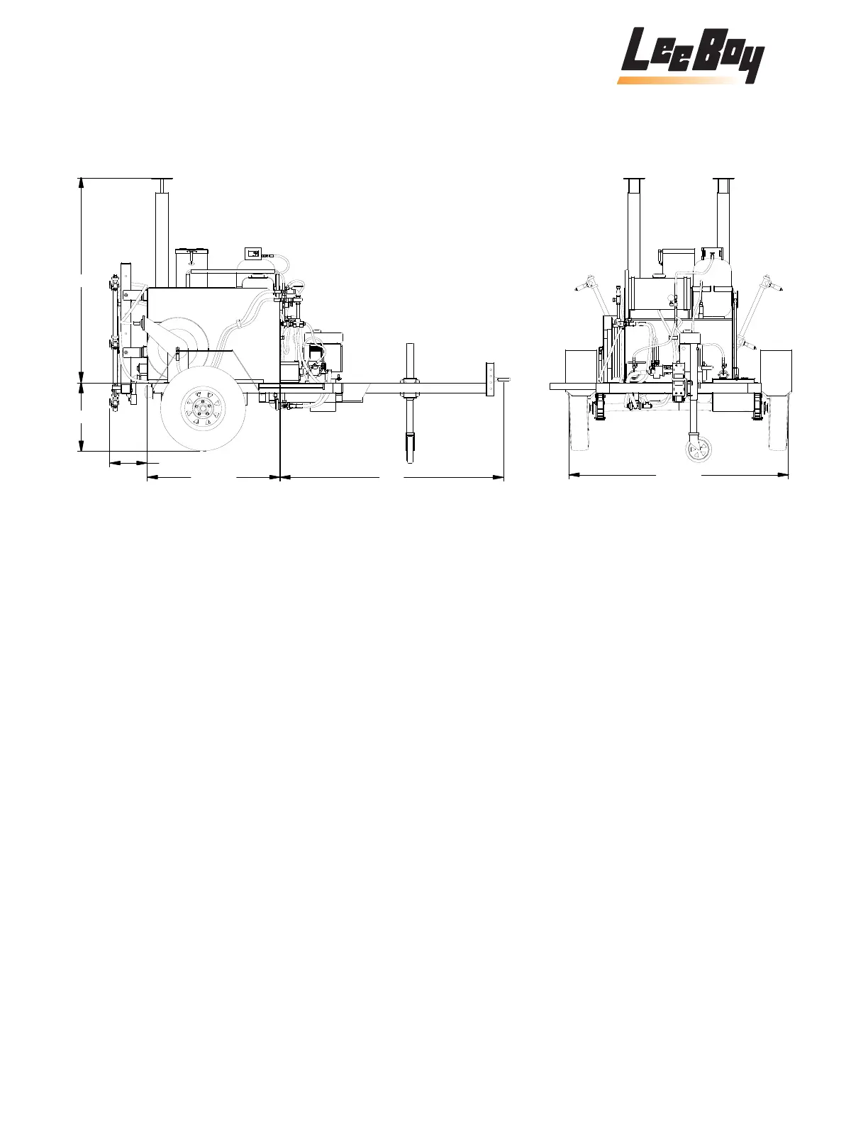
LeeBoy Model L150 Track Distributor
(Trailer Specifications)
Engine: 5 HP Honda gas engine
Asphalt Pump: Specially designed .308 CI Pump
Heat System: Two (2) 54,000 BTU Propane
burners, one (1) starter burner
and a 30 lb. fuel tank
Temperature
Gauge: 0-300 degrees Fahrenheit
Tank
Dimensions: Length: 42 1/4"
Width: 34 1/2"
Height: 30 1/2"
Flush Tank: Seven (7) gallon
Hose & Reel: 1/2" x 40' heavy duty hose with a
hea
vy duty re-coil reel
Wand: Six (6) foot wand with on/off valve
and remo
v
ab
le spr
a
y tip
Fill Spout: 10" x 10"
Clean Out: 4"
Access Valve: 1”
Dimensions: Length: 113 1 /2"
Width: 69 3/4"
Height: 86 3/4"
Shipping Weight: 1,260 lbs.
Loaded Weight: 2,520 lbs.
Optional
Equipment: Eight (8) foot spray bar that
folds to a lockable position.
Separate cut-off valves to
control each spray nozzle.
5 HP Briggs & Stratton
71"
42 1/4"
21 1/2"
65 1/4"
11 7/8"
69 3/4"

Related product manuals