EasyManua.ls Logo

Lenze 9300 Series - 4.3.4 Fasten controller on mounting plate

Lenze 9300 Series
458 pages
To Next Page IconTo Next Page
To Next Page IconTo Next Page
To Previous Page IconTo Previous Page
To Previous Page IconTo Previous Page
Loading...
Installing of the standard device
Basic devices in the power range 250 ... 400 kW
Fasten controller on mounting plate
4
4.3
4.3.4
4.3−4
EDSVF9383V EN 7.1−04/2012
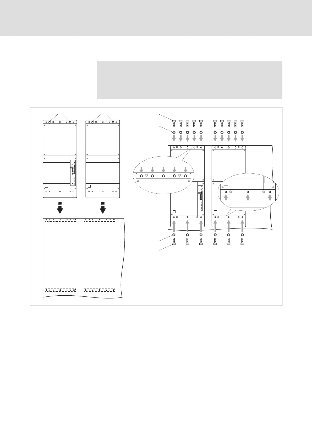
4.3.4 Fasten controller on mounting plate
Danger!
Risk of injury due to the high weight of the controller.
The controller has to be carried using the eyebolts and an
adequate lifting tool.
12
3
5
4
00
5
4
9300vec081
Fig. 4.3−4 Fastening the controller on mounting plate
Eyebolts Mounting plate
Master 16 hexagon socket screws M8 × 25 mm
Slave 16 spring washers M8
1. Put master and slave on the mounting plate.
2. Fasten the master and slave each with five hexagon socket screws and
spring washers at the top and 3 hexagon socket screws and spring
washers at the bottom exactly at the marked point.

Table of Contents

Other manuals for Lenze 9300 Series

Related product manuals