EasyManua.ls Logo

LSIS XBF-AD08A - Page 458

LSIS XBF-AD08A
618 pages
Print Icon
To Next Page IconTo Next Page
To Next Page IconTo Next Page
To Previous Page IconTo Previous Page
To Previous Page IconTo Previous Page
Loading...
Chapter 12 Thermocouple Input Option Module (XBO-TC02A)
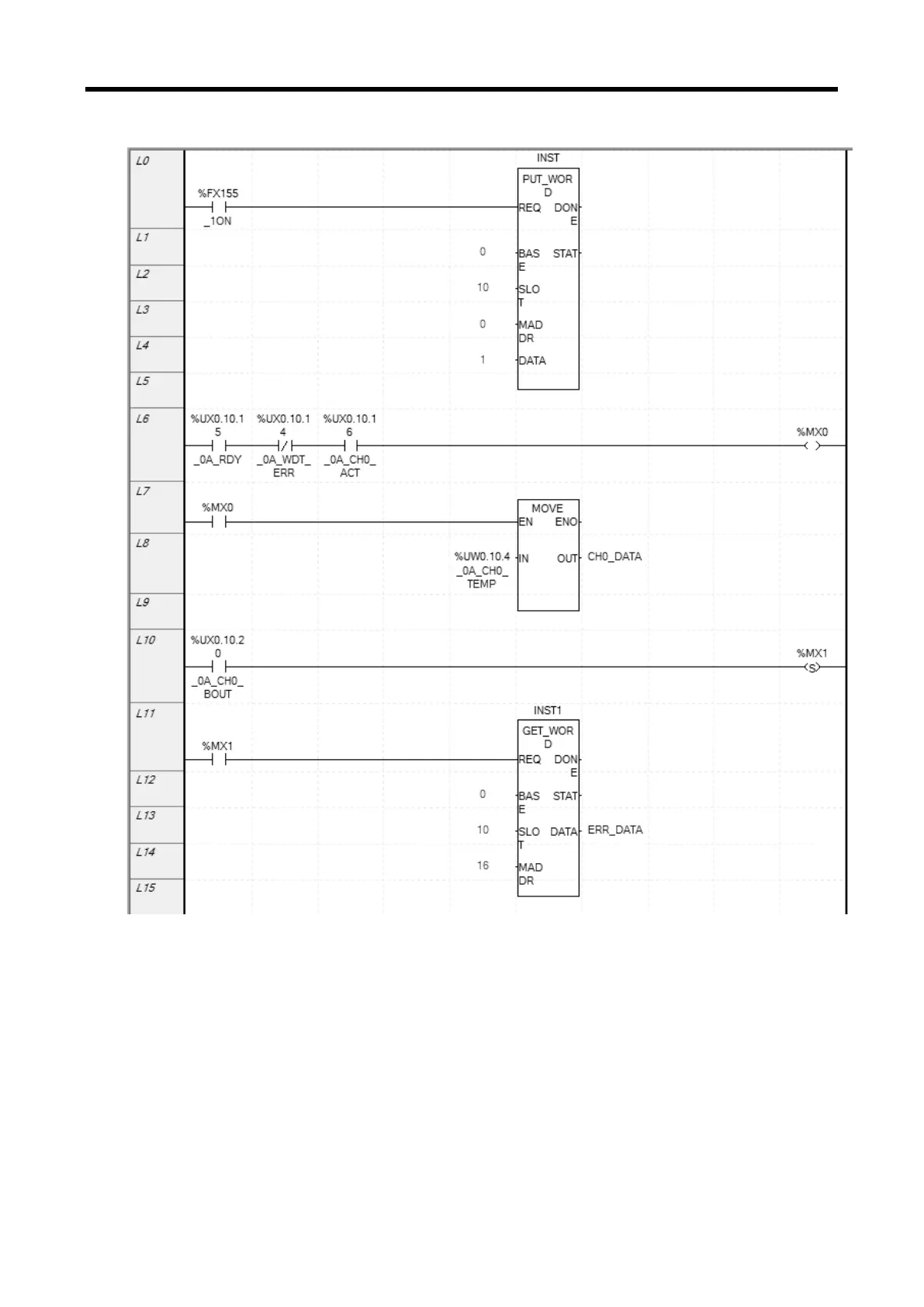
(2) Program example (IEC Type)
(a) It writes 1 at address 0 of slot 1 in order to enable CH0 by using PUT instruction.
(b) If module is under normal operation, %MX0 is on.
%UX0.10.15 (Module Ready) = On
%UX0.10.14 (Module H/W error) = Off
%UX0.10.16 (CH 0 running) = On
(c) If M0000 is on, temp. conversion value of CH0 moves to CH0_DATA.
Current temp. conversion value, CH0 Temp Value(%UW0.10.4)is saving in CH0_DATA.
(d) If disconnection error occurs at CH0, %XU0.10.20 (CH0 disconnection) is on and %MX1 bit is
set.
(e) If %MX0 is on, setting error (address 16) of CH0 moves to ERR_DATA. Since setting error
(address 16) of CH0 is 0, there is no setting error.
12 - 33

Table of Contents

Related product manuals