EasyManua.ls Logo

LSIS XBF-AD08A - Page 602

LSIS XBF-AD08A
618 pages
Print Icon
To Next Page IconTo Next Page
To Next Page IconTo Next Page
To Previous Page IconTo Previous Page
To Previous Page IconTo Previous Page
Loading...
Chapter 15 PID Function (Built-in function)
15 - 53
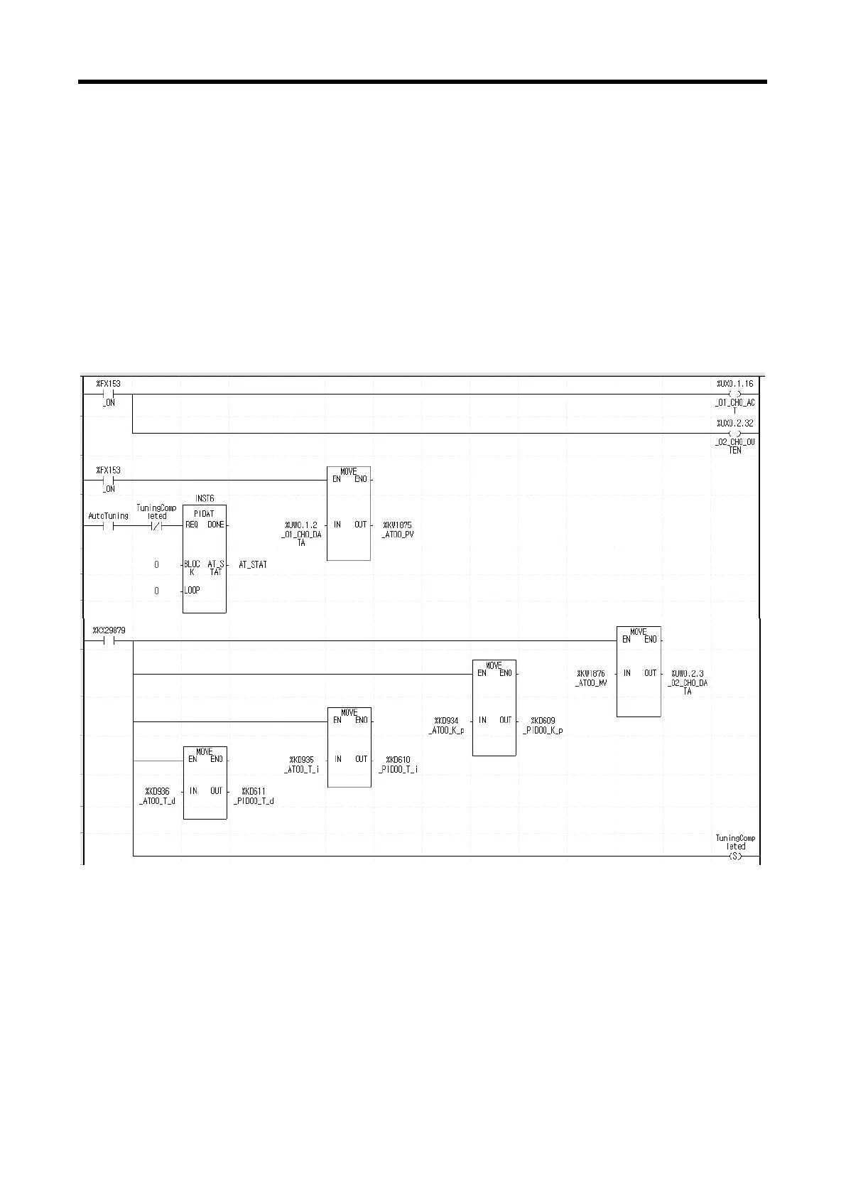
2) Program explanation
a) Since F0099 (always on) is ON if PLC is converted form STOP to RUN, CH0 of A/D and
D/A starts operating.
b) Once M0000 junction is on, the auto-tuning of loop 0 starts. At the moment, PV entered to
CH0 is moved to K1875, the PV input device of loop 0 and saved accordingly.
c) The auto-tuning MV of Loop 0 output by PIDAT command is output to D/A output module
by line 11, MOV command.
d) Once auto-tuning is complete, it moves P, I, D coefficients generated from auto-tuning to
the input devices of P, I and D, K1218,K1220 and K1222, sets M001 and starts the
operation of PID loop 0.
3) In case of IEC type, program example is as shown below.

Table of Contents

Related product manuals