EasyManua.ls Logo

Mariner 90 - Trim Indicator Gauge and Trim Sender Wiring Diagrams; Wiring Diagram

Default Icon
391 pages
Print Icon
To Next Page IconTo Next Page
To Next Page IconTo Next Page
To Previous Page IconTo Previous Page
To Previous Page IconTo Previous Page
Loading...
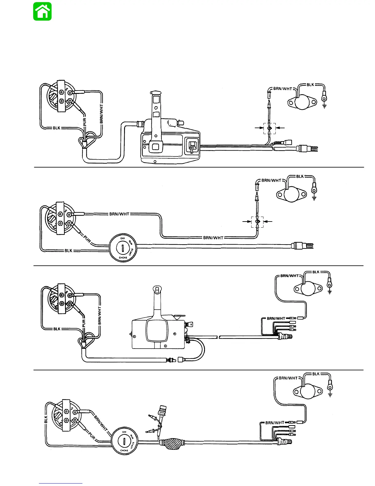
6A-7POWER TRIM90-13645--2 495
Wiring Diagram
Trim Indicator Gauge and Trim Sender
Wiring Diagrams
Connect Wires Together with
Screw and Hex Nut; Apply
Liquid Neoprene to Connection
(Provided with Ignition
Switch Harness)
Wiring Diagram – For boats equipped with Quicksilver
Commander Series side mount remote control.
TRIM INDICATOR GAUGE
8 PIN HARNESS
REMOTE CONTROL
Rubber Sleeve
(Slide over
Connection)
TRIM SENDER
ENGINE
GROUND
TO ENGINE
Connect Wires Together with
Screw and Hex Nut; Apply
Liquid Neoprene to Connection
TRIM INDICATOR GAUGE
8 PIN HARNESS
BLK
TRIM SENDER
IGNITION/CHOKE
SWITCH
Wiring Diagram – For boats equipped with Quicksilver
Ignition/Choke and Main Harness Assembly.
ENGINE
GROUND
Wiring Diagram – For boats equipped with Quicksilver
Commander 2000 Series side mount remote control.
TRIM INDICATOR GAUGE
12 PIN HARNESS
REMOTE CONTROL
ENGINE
GROUND
TRIM
SENDER
TO ENGINE
TRIM INDICATOR GAUGE
IGNITION/CHOKE
SWITCH
POWER TRIM HARNESS
ENGINE
GROUND
TRIM
SENDER
TO ENGINE
22908
Rubber Sleeve
(Slide over
Connection)
TO ENGINE
Wiring Diagram – For boats equipped with Quicksilver
Ignition/Choke and Main Harness Assembly
12 PIN HARNESS

Table of Contents

Related product manuals