EasyManua.ls Logo

MARLO MR-210-2 - Wiring Diagram; Tubing Diagrams

Default Icon
52 pages
Print Icon
To Next Page IconTo Next Page
To Next Page IconTo Next Page
To Previous Page IconTo Previous Page
To Previous Page IconTo Previous Page
Loading...
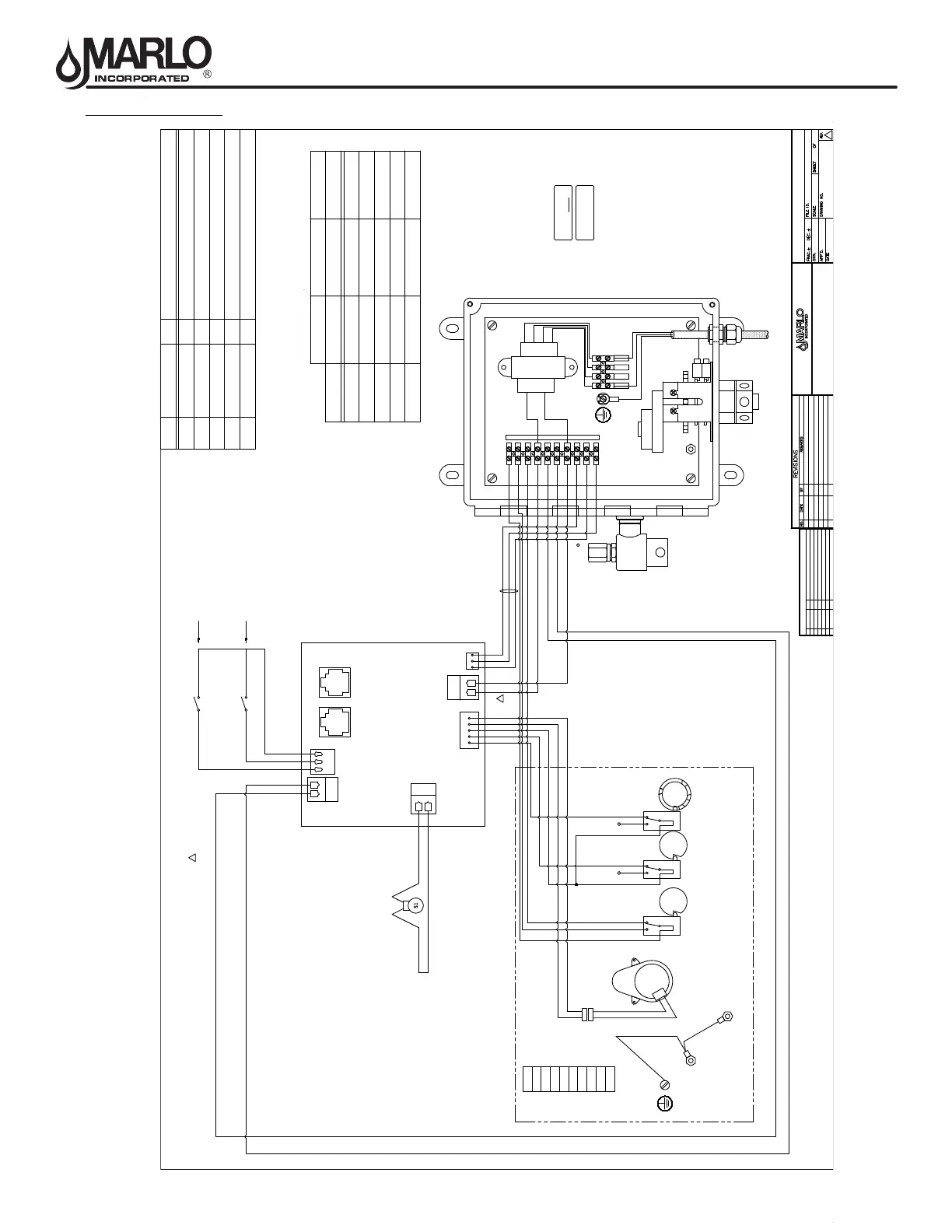
MR 150M–1050M SINGLE – MXIII CONTROLLER
SYSTEM INFORMATION
5
WIRING DIAGRAM
MODEL 48 STAGER
WITH MARLO LOGO
MX III CONTROLLER WIRING
B1046050
MRP
VB
5/24/11
NTS 1 1
B1046050
5
1. 10/23/12 KCA SENSOR WIRES WERE WIRED TO
TERMINALS 7,8 & 9 RESPECTIVELY.
ADDED AUX RELAY WIRING.
2 8/26/13 MRP ADDED SOLENOID TO DRAWING
3. 9/29/15 KCA VARIOUS UL CHANGES.
4. 11/3/17 JH VARIOUS UPDATES
1 2 3 4 5 6 7 8 9 10
Seqn
Item Number
Qty
Description
1
2
3
4
TRANSFORMER 40VA 120V/24VAC (T40F3)
A2242066
1
POWER CORD
XFMR
GROUND
A2173315
A2155115
A2090040
1
1
1
CONTROL NXT STAGER 48 W/SOLENOID
WIRE JOINT INSULATED #18-#12
CORD POWER 18/3 8FT 10A (1FD82)
SW1
SW2
TERMINALS
BLACK
SHIELD
BLACK
CLEAR
RED
BLACK
RED
RED
GREEN
RED
WHITE
BLACK
FLECK
SIGNET
CLACK
AUTOTROL
FLOW METER WIRING
BLK
RED
GRN
P-2
METER
CIRCUIT BOARD
(MOUNTED ON
INSIDE OF DOOR)
P-1
24VAC
RED
PURPLE
ORANGE
BLACK
WHT/BLK
YELLOW
RED
WHITE
BLK
RED
GRN
UPPER DRIVE
PURPLE
BLACK
ORANGE
BLACK
1
2
3
4
5
6
7
8
9
10
STAGER INTERNAL WIRING
(SEE ENCLOSURE ON RIGHT)
PROGRAM CAM
AUX CAM #1
STAGER MOTOR
24VAC 50/60Hz
4 WATT
N.O.
N.C.
N.O.
N.C.
C
C
BLUE
BLUE
STAGER
MOUNTED SCREW
GROUND
LUG
GROUND
SCREW
GREEN/YELLOW
GRN/YEL
SW2
SW1
(HOMING CAM)
(SWITCH HOUSING)
IS RED
(CYCLECAM)
SWITCHED HOT
NEUTRAL
BLACK
BLACK
P4
AUX
LOCKOUT
REMOTE START
GND
OPTIONAL REMOTE
SIGNAL START
SWITCH (N.O.)
OPTIONAL INTERLOCK
SWITCH (N.O.)
CLOSED CONTACT
PREVENTS REGENERATION
-INPUT SIDE PULLED UP TO 32 VDC
CLOSED CONTACT
INITIATES REGENERATION
IF OPTION ENABLED
-INPUT SIDE PULLED UP TO 32 VDC
OPTIONAL MOTOR/PUMP ON DURING REGENERATION
OR CPO DEVICE ON DURING SERVICE (N.O. OUTPUT)
DRY CONTACT
24VAC/3A MAX. RESISTIVE
30VDC/3A MAX. RESISTIVE
LOWER
DRIVE
OPTIONAL SOLENOID VALVE ENERGIZED
DURING REGENERATION OR STANDBY
(P6 OUTPUT - 24VAC 50/60Hz, 1.0A MAX.)
CAN1 CAN2
P8
DEVICE T-9 T-10T-8
DC(-) DC(+)SIGNAL(S)
RED
RED
5
A2169003
4
MOUNTING FEET
P6
S-1
3
3
TORQUE TO lbs-in
TERMINAL RATING
5.3
USE GAUGE
WIRE
ONLY
10 - 22
WHT
RED
ORG
BLK
WHT
BLK
GRN
11
120V
LINE IN
12
240V
LINE IN
13
208V
LINE IN
14
NEUTRAL
IN
WHT
OPTIONAL
AUX CAM #2
N.O.
N.C.
C
SW3
BLACK
RED
GREENPULSE
RED
RED
BLU
YEL
BRN
RED
PURP
PURP
RED
BROWN
REMARKSBYNO. DATE
REVISIONS
5. 12/21/17 KA ADDED/MODIFIED WIRE COLORS.

Related product manuals