EasyManua.ls Logo

Miller Subarc DC 650 - DC 1000;1250 Models Circuit Diagram

Miller Subarc DC 650
56 pages
Print Icon
To Next Page IconTo Next Page
To Next Page IconTo Next Page
To Previous Page IconTo Previous Page
To Previous Page IconTo Previous Page
Loading...
. A complete Parts List is available at www.MillerWelds.com
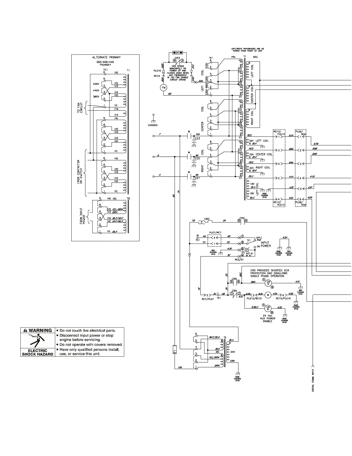
OM-265 363 Page 44
Figure 10-2. Circuit Diagram For DC 1000/1250 Models

Table of Contents

Related product manuals