EasyManua.ls Logo

Mitsubishi FR-E520-0.1KN

Mitsubishi FR-E520-0.1KN
193 pages
To Next Page IconTo Next Page
To Next Page IconTo Next Page
To Previous Page IconTo Previous Page
To Previous Page IconTo Previous Page
Loading...
SPECIFICATIONS
169
!
!!
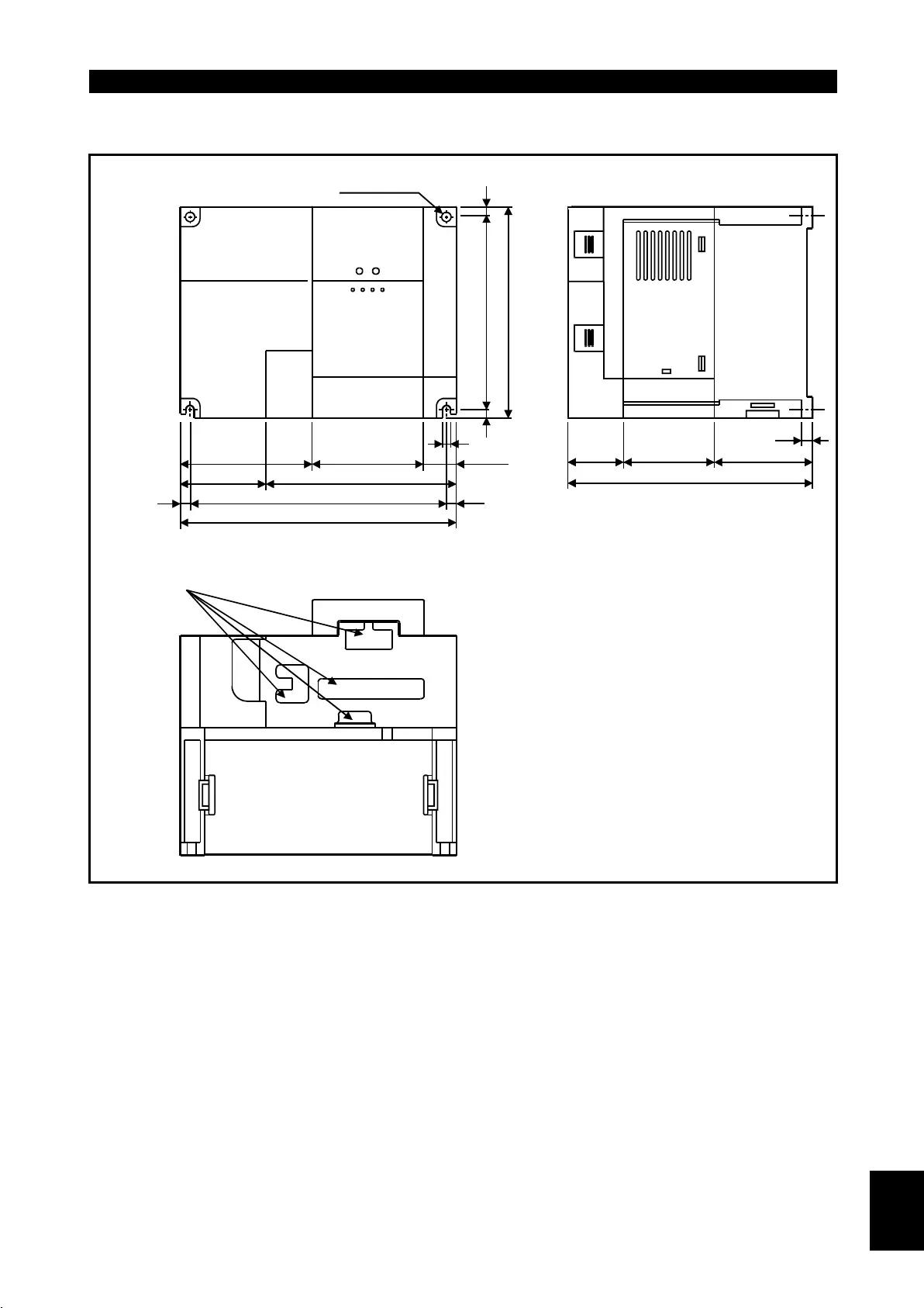
! FR-E520-3.7KN
82.5
68
5
5
157.6
19.5
118
128
5
5
6 158
170
6
114.555.5
55
30.6
72
2-
φ
5 hole
W
irin
g
holes
Cooling fan
×
2
(Unit: mm)
6

Table of Contents

Related product manuals