EasyManua.ls Logo

Mitsubishi FR-E520-0.1KN

Mitsubishi FR-E520-0.1KN
193 pages
To Next Page IconTo Next Page
To Next Page IconTo Next Page
To Previous Page IconTo Previous Page
To Previous Page IconTo Previous Page
Loading...
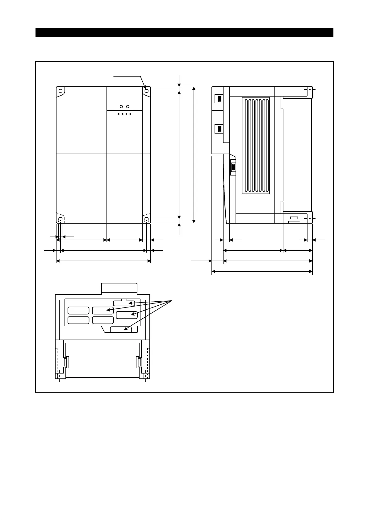
SPECIFICATIONS
170
!
!!
! FR-E520-5.5KN, 7.5KN
10
57.5112.5
170
1116
8
6
96 68
164
180
8
8244
260
8
189.6
19.6
2-
φ
6 hole
Wiring holes
Cooling fans
×
2
(Unit: mm)

Table of Contents

Related product manuals