EasyManua.ls Logo

Mitsubishi MR-JE-70B - Dimensions

Mitsubishi MR-JE-70B
294 pages
To Next Page IconTo Next Page
To Next Page IconTo Next Page
To Previous Page IconTo Previous Page
To Previous Page IconTo Previous Page
Loading...
11. OPTIONS AND PERIPHERAL EQUIPMENT
11 - 15
11.2.5 Dimensions
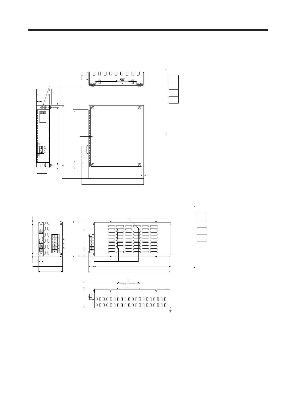
(1) MR-RB12
[Unit: mm]
5
144
Approx. 20
169
168
1566
12
6
36
40
φ6 mounting hole
T
E1
15
Approx. 6
149
2
TE1 terminal block
G3
G4
P
C
Applicable wire size: 0.2 mm
2
to 2.5 mm
2
(AWG 24 to
12)
Tightening torque: 0.5 to 0.6 [N•m]
Mounting screw
Screw size: M5
Tightening torque: 3.24 [N•m]
Mass: 1.1 [kg]
(2) MR-RB30/MR-RB32
[Unit: mm]
8.5125
150
Approx. 30
142
79
82.530
8.5
10
90
101.5 82.5
318
17
335
Intake
7
100
Cooling fan mounting
screw (2-M4 screw)
Terminal block
P
C
G3
G4
Terminal screw size: M4
Tightening torque: 1.2 [N•m]
Mounting screw
Screw size: M6
Tightening torque: 5.4 [N•m]
Mass: 2.9 [kg]

Table of Contents

Related product manuals