EasyManua.ls Logo

MSA 610A - Page 16

MSA 610A
50 pages
Print Icon
To Next Page IconTo Next Page
To Next Page IconTo Next Page
To Previous Page IconTo Previous Page
To Previous Page IconTo Previous Page
Loading...
MODEL 610A
9
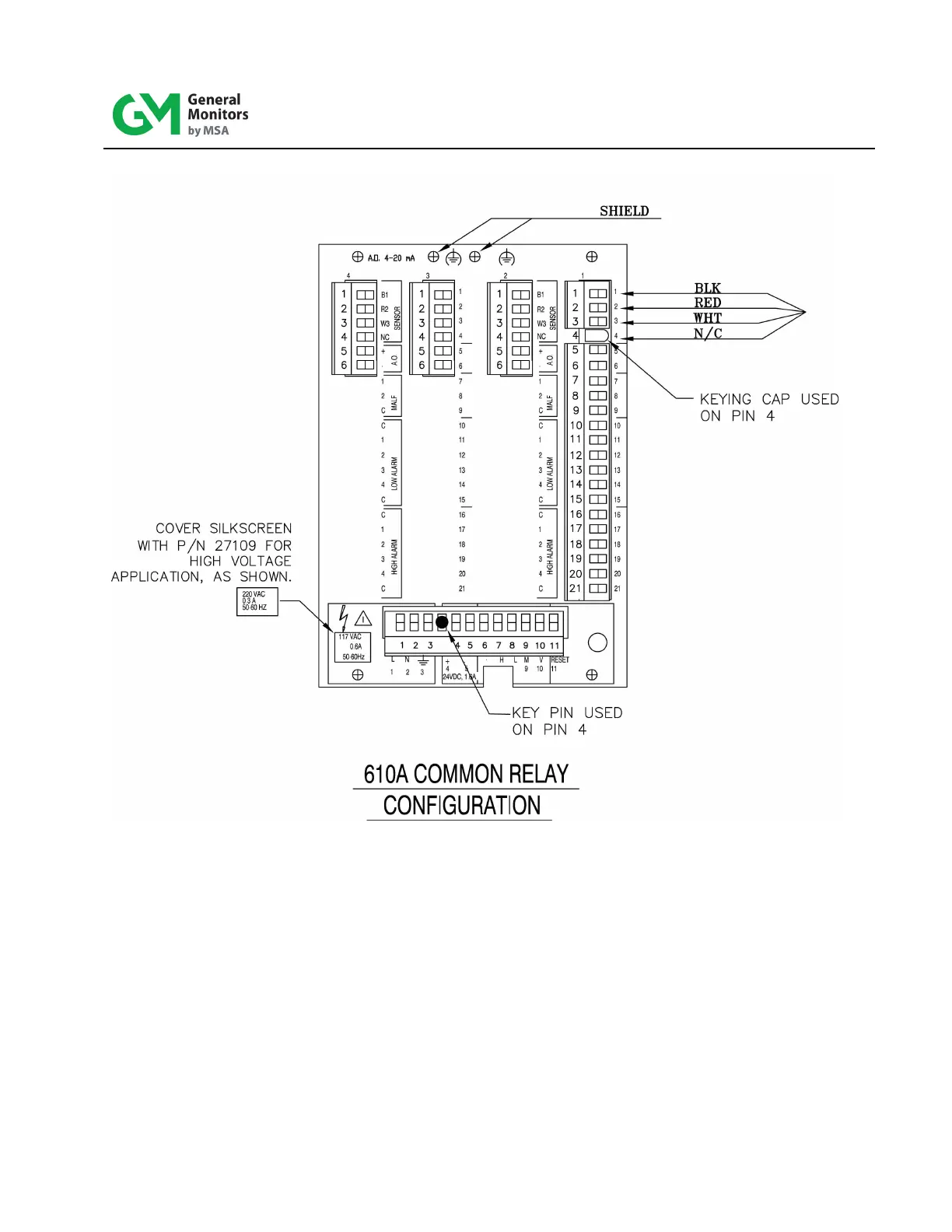
Figure 4: Rear Terminal Common Relay Configuration

Table of Contents

Related product manuals