EasyManua.ls Logo

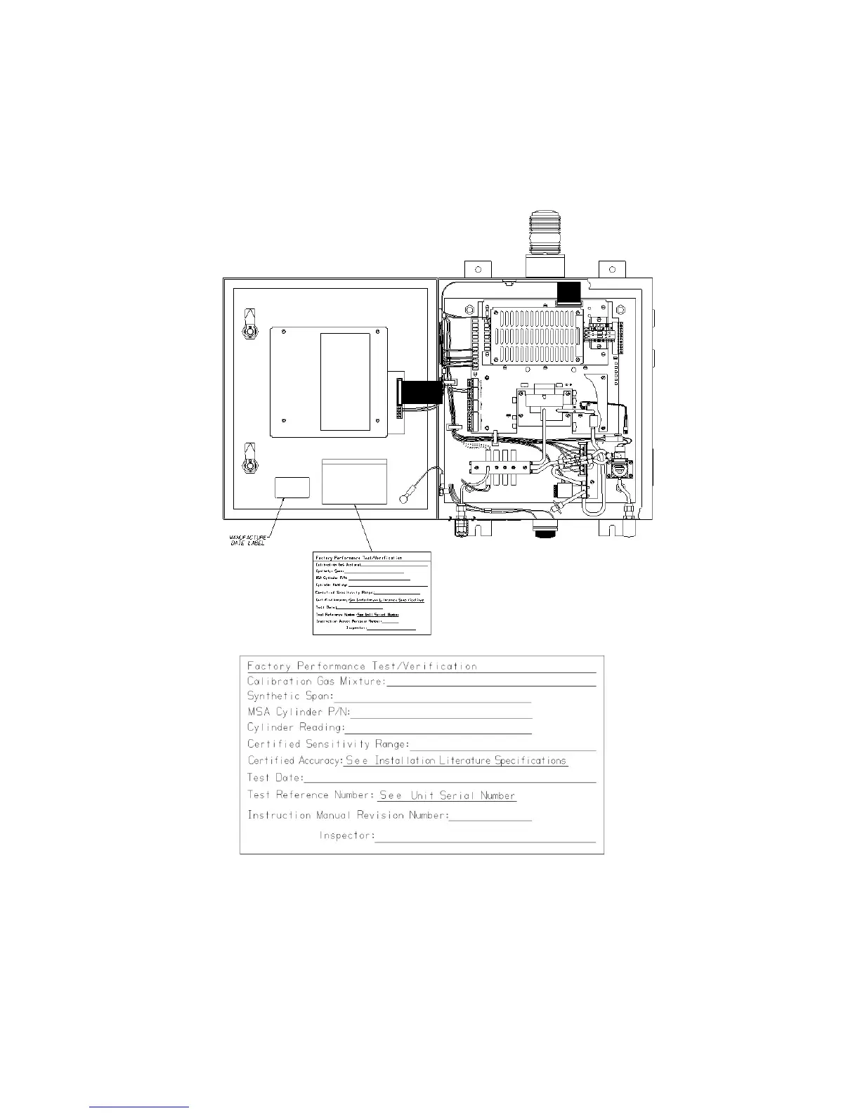
MSA Chillgard RT - Figure 1-1. Identifying Your Unit

MSA Chillgard RT
124 pages
Print Icon
To Next Page IconTo Next Page
To Next Page IconTo Next Page
To Previous Page IconTo Previous Page
To Previous Page IconTo Previous Page
Loading...
1-4
Figure 1-1. I
dentifying your Unit

Table of Contents

Related product manuals