EasyManua.ls Logo

MULTILIFT ULTIMA S - Working lights

Default Icon
62 pages
Print Icon
To Next Page IconTo Next Page
To Next Page IconTo Next Page
To Previous Page IconTo Previous Page
To Previous Page IconTo Previous Page
Loading...
Installation
Ultima Hooklift 01/2020
51
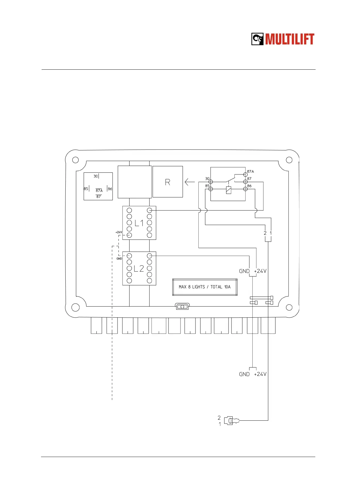
6.5 Working lights
Install the relay box near the control valve and the working lights to the connection bridges in-
side the box. Then connect the JPT connector to the connector 1.21 in the valve harness or in
case of helping cylinder is equipped, to connector 2.17 in the extra harness.
Now connect the relay box power to the truck power supply behind a fuse 10-15A.
Note! Max 8 lights totalling 10A.
L1 +24V
To connector 1.21 in the valve harness
or to connector 2.17 if helping cylinder is installed
Work light cables to
individual lights
Use own inlet to each lamp!
33 ft
3.2 ft
Red +24V
Brown GND
L2 GND

Table of Contents

Related product manuals