EasyManua.ls Logo

Nu-Vu SUB-123 - Receipt, Installation and Start-Up; Receipt

Nu-Vu SUB-123
66 pages
Print Icon
To Next Page IconTo Next Page
To Next Page IconTo Next Page
To Previous Page IconTo Previous Page
To Previous Page IconTo Previous Page
Loading...
SUB–123 OWNER'S MANUAL RECEIPT, INSTALLATION AND START-UP
RECEIPT, INSTALLATION AND START-UP
RECEIPT:
It is essential to inspect the unit immediately when it arrives. NU-VU
®
has placed instructions on the
packaging to help avoid damage in transit. However, negligent handling can produce hidden damage.
These steps should be followed:
A. Inspect the entire perimeter of the package for damage or punctures to the packing material.
This may indicate damage to the unit inside. Call any and all packing damage to the attention of
the delivery person.
B. If any
package damage is found uncrate the unit immediately
in the presence of the delivery
person
to determine if the unit is damaged. Pay special attention to the top of the unit. Make sure it
is not bend or otherwise damaged, which may occur if the top of the unit has struck a door frame
or the top of a trailer. If any damage is found indicate the type and amount of damage on the
shipping documents and notify NU-VU
®
at (800) 338-9886 immediately after filing a freight
claim.
C. Uncrate the unit carefully and check the entire unit (top, front, back, and both sides) for any visible
or hidden damage.
D. Remove the unit from the shipping pallet and inspect the bottom (including the Casters) for any
damage. Check the Casters and the Proofer Motor/Cover under the unit.
E. If any damage is noted after the driver leaves immediately contact the freight company and
NU-VU
®
Food Service Systems.
F. Check the Oven and Proofer Doors. Make sure both Doors close completely, and that the Door
Gaskets seal firmly (refer to the
DOOR TEST PROCEDURE
in the
SERVICE AND
REPLACEMENT GUIDE
). If they do not close or seal properly please contact the NU-VU
®
Service Department for instructions and assistance in any required adjustments.
G. Count the number of Shelves included. There should be a total of twelve (12) Shelves (nine for the
Proofer, three for the Oven). Contact NU-VU
®
immediately concerning any shortage.
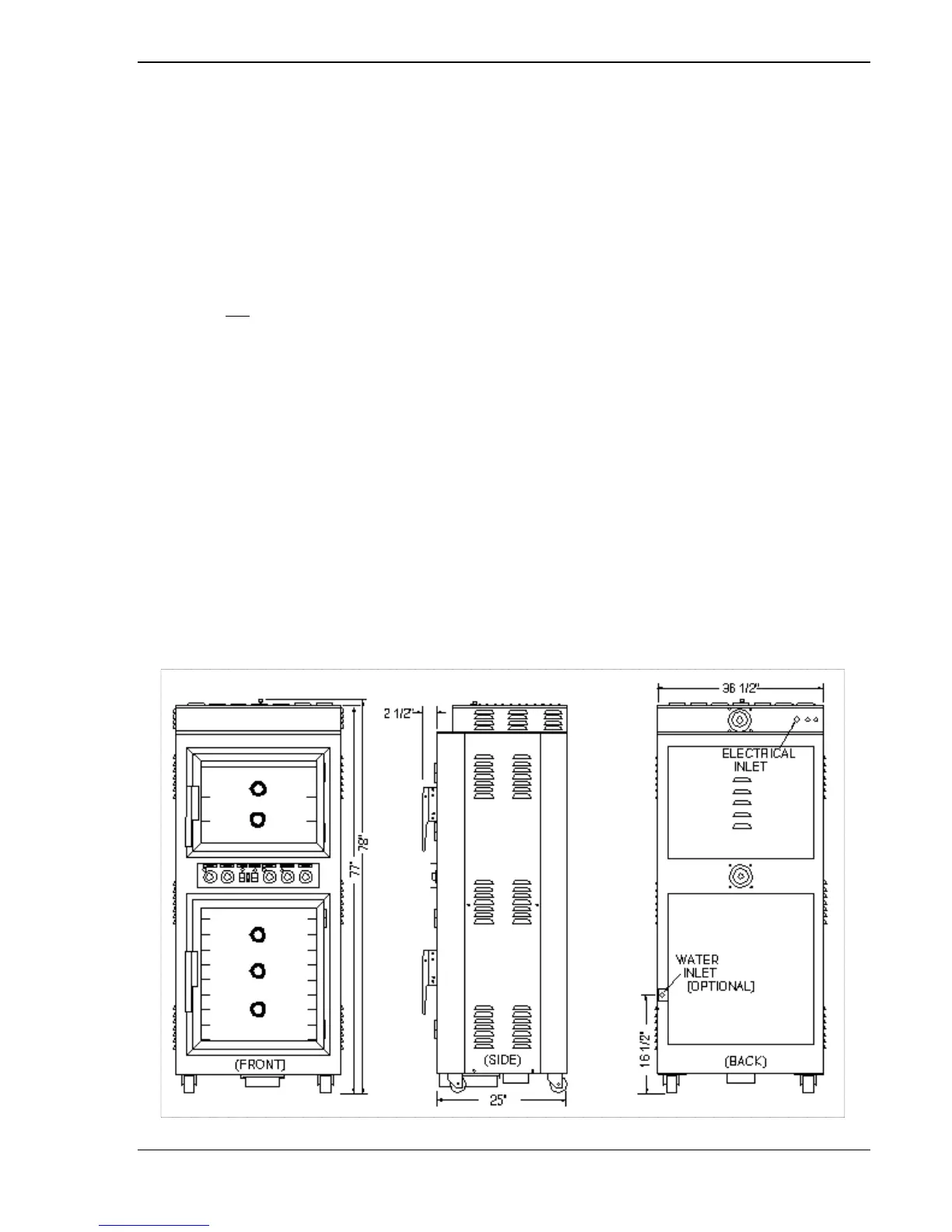
Fi
g
. #1
-
Installation
NU-VU
®
FOOD SERVICE SYSTEMS MENOMINEE MICHIGAN 49858-0035
(800) 338-9886 Sales Fax (906) 863-5889 Service Fax (906) 863-6322 page
3

Table of Contents

Related product manuals