EasyManua.ls Logo

Nyle e360 - Expanded Performance Data

Nyle e360
44 pages
Print Icon
To Next Page IconTo Next Page
To Next Page IconTo Next Page
To Previous Page IconTo Previous Page
To Previous Page IconTo Previous Page
Loading...
HeatWater.com | WaterService@nyle.com | (800) 777-6953 IM-e360-122023 IM-e360-122023 HeatWater.com | WaterService@nyle.com | (800) 777-6953
11
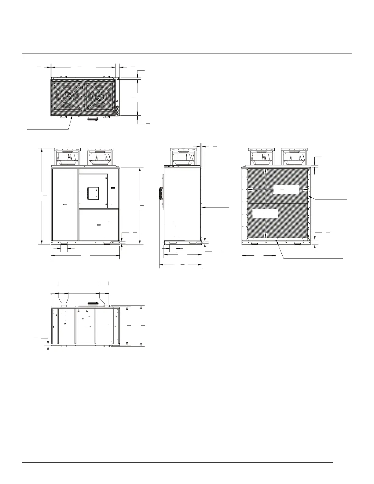
Dimensions
Figure 3: e360 Dimensions
72"
81
1
8
"
7"
1
5
8
"
101
1
4
"
FRONT
40"
1
3
8
"
44
5
8
"
1
5
8
"
7"
AIR FLOW
LEFT
41
3
4
"
7
8
"
43
1
2
"
0"
11
1
2
"
15
3
4
"
56
1
2
"
60
3
4
"
BOTTOM
62
5
8
" O.D.
36"
4
1
2
"
2"
72
7
8
" O.D.
REAR
INTAKE DUCT
COLLAR
3/4" CONDENSATE DRAIN
1
2
"
4
1
4
"
2"
1
2
"
37
5
8
" O.D.
67
1
2
" O.D.
TOP
DISCHARGE DUCT
COLLAR

Table of Contents

Other manuals for Nyle e360

Related product manuals