EasyManua.ls Logo

Oki B4500 - 6 Wiring Diagram; Interconnect Signal Diagram

Oki B4500
171 pages
Print Icon
To Next Page IconTo Next Page
To Next Page IconTo Next Page
To Previous Page IconTo Previous Page
To Previous Page IconTo Previous Page
Loading...
43502101TH Rev.1 78 /
Oki Data CONFIDENTIAL
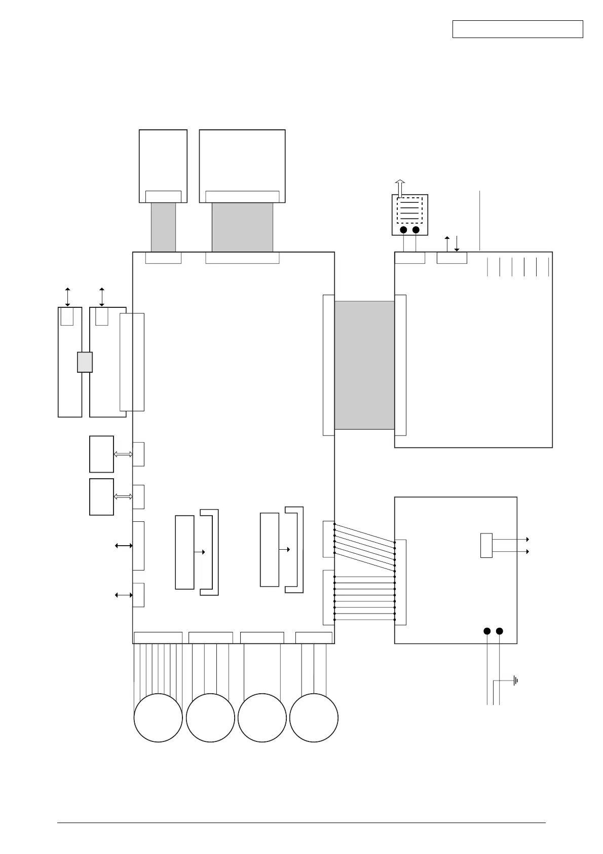
6. WIRING DIAGRAM
6.1 Interconnect Signal Diagram
HVIFPW_1
USB
RM
CLT
FAN
USB I/F
CENT
CN1
OPTION
CN2
ENVE
LOPE
2ND
TRAY
ROM-DIMM
ROM DIMM
PW_2
CN1CN101
CN2
*1: Option
DM
TR
SB
DB
CB
GND
CH
S5/S6
S7
S8
S9
S10
S11
*1
*1 *1
*1
*1
RAM-DIMM
RAM DIMM
*1
LCDPNL CN
HEAD
High Voltage Output
To Thermister in Fuser Unit
Board TMA
To Image Drum Unit
DC
Motor
Assy.
Pulse Motor
Clutch
FAN
Centronics I/F
Network Board
CN2
RS232C Board
Network I/F
RS232C I/F
Multi
Purpose
Feeder
Second
Paper
Feeder
Operator Panel
Assy
LED Head Unit
Main Control Board
High Voltage / Sensor Board
Low Voltage
Power Supply
AC
Input
To Fuser Unit
(AC supply)
OR

Table of Contents

Related product manuals