EasyManua.ls Logo

Omron R88D-KN series

Omron R88D-KN series
570 pages
To Next Page IconTo Next Page
To Next Page IconTo Next Page
To Previous Page IconTo Previous Page
To Previous Page IconTo Previous Page
Loading...
4 System Design
4-50
G5 Series AC Servo Drives With Built-in EtherCAT Communications, Linear Motor Type
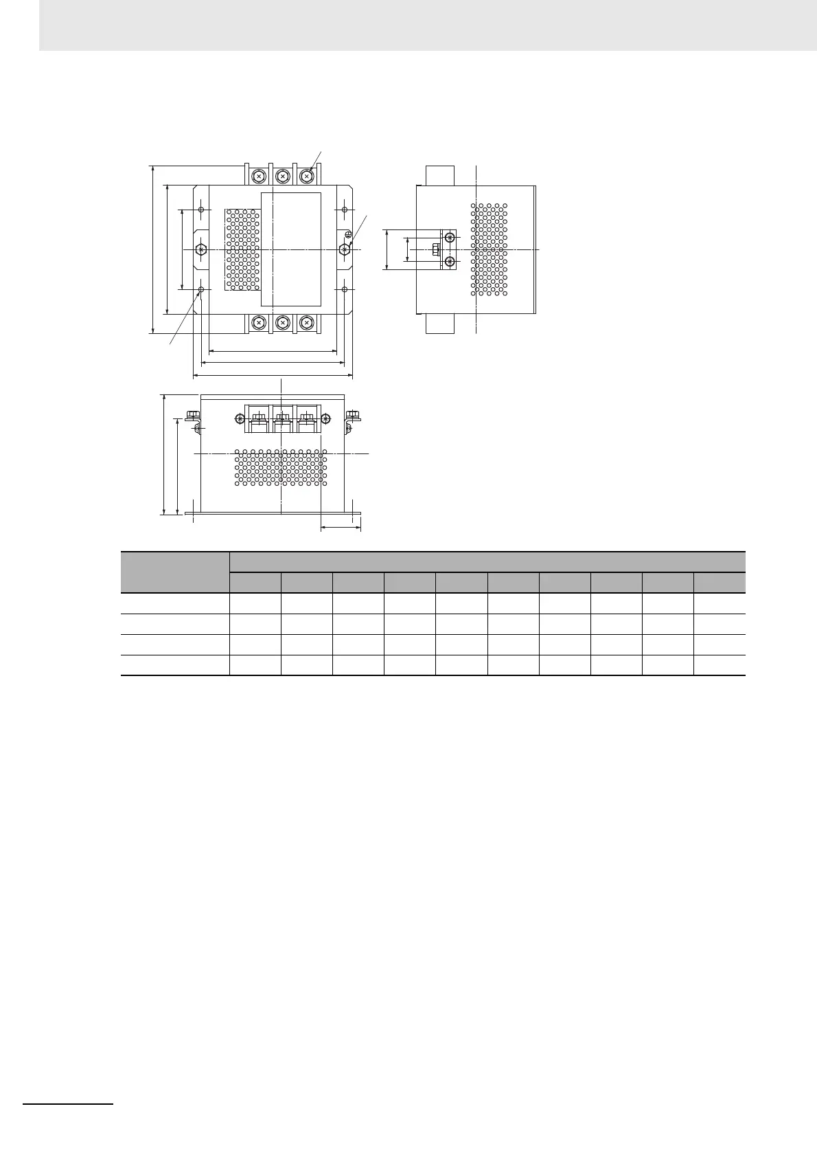
3G3AX-NF003/-NF004/-NF005/-NF006
Model
Dimensions [mm]
A B C E F H J N O P
3G3AX-NF003 160 145 130 80 112 120 M4 154
3G3AX-NF004 200 180 160 100 162 150 120 M5 M5 210
3G3AX-NF005 220 200 180 100 182 170 140 M6 M6 230
3G3AX-NF006 220 200 180 100 182 170 140 M8 M8 237
C
B
A
P
F
E
6-O
2-N
50
30
4-φ6.5
50
H
J

Table of Contents

Related product manuals