EasyManua.ls Logo

Omron SYSMAC CQM1-ID212 - Dimensions and Weights; Memory Cassette

Omron SYSMAC CQM1-ID212
157 pages
Print Icon
To Next Page IconTo Next Page
To Next Page IconTo Next Page
To Previous Page IconTo Previous Page
To Previous Page IconTo Previous Page
Loading...
!
10
If the PC power supply is already turned on when a Peripheral Device is attached
to the PC, the PC will stay in the same mode it was in before the peripheral
device was attached. If the Programming Console is connected, the PC will
enter the mode set on the Programming Consoles mode selector once the
password has been entered.
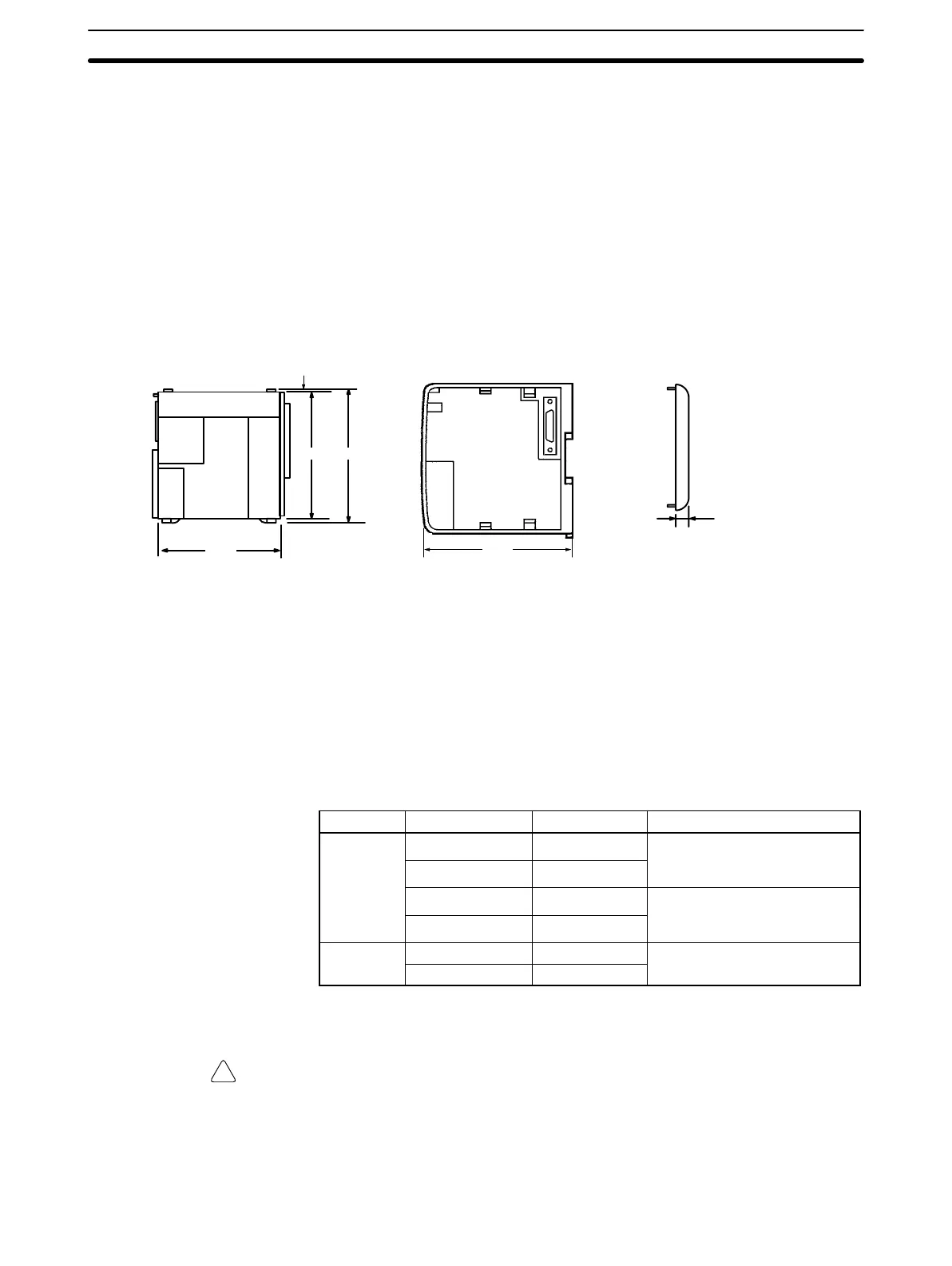
2-1-5 Dimensions and Weights
Dimensions The following diagrams show the dimensions of the CPU Unit and right End
Cover, which covers the Unit at the far right side of the PC. All dimensions are in
millimeters.
CPU Unit Front View CPU Unit Side View End Cover Front View
110 115.7
120
2
13.5
107
Note The depth is the same for all Units.
Weights The CQM1-CPU11-E weighs 520 g max.; the CQM1-CPU21-E and
CQM1-CPU41-EV1, 530 g max. All the other CPU Units weigh 600 g max.
2-1-6 Memory Cassette
Four Memory Cassettes are available as accessories to store the program or PC
Setup. When pin 2 of the CPU Units DIP switch is ON, the contents of the
Memory Cassette will be transferred to the CPU Unit automatically at start-up.
Memory Clock Function Model Comments
EEPROM
No CQM1-ME04K
The Programming Console is
Yes CQM1-ME04R
used to write to EEPROM.
(4K words)
No CQM1-ME08K
The Programming Console is
Yes CQM1-ME08R
used to write to EEPROM.
(8K words)
EPROM
No CQM1-MP08K
A PROM Writer is used to write
Yes CQM1-MP08R
to EPROM.
Memory Cassette Installation Follow the procedure below to install a Memory Cassette in the CPU Unit.
Caution Always turn off power to the CQM1 before installing or removing a Memory Cas-
sette.
1, 2, 3... 1. Remove the mounting bracket from inside the memory cassette compart-
ment.
CPU Unit Section 2-1
Artisan Technology Group - Quality Instrumentation ... Guaranteed | (888) 88-SOURCE | www.artisantg.com

Table of Contents

Related product manuals