EasyManua.ls Logo

Opsis LD500 - Page 44

Opsis LD500
54 pages
Print Icon
To Next Page IconTo Next Page
To Next Page IconTo Next Page
To Previous Page IconTo Previous Page
To Previous Page IconTo Previous Page
Loading...
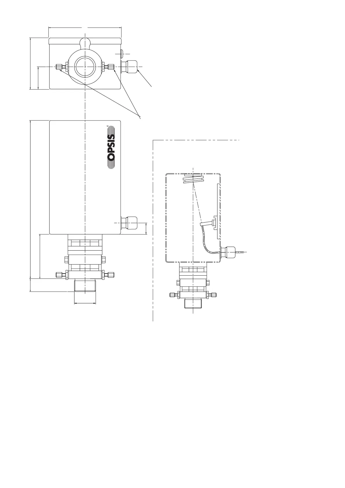
Drawing no. 4. Emitter EM060L
Purged air inlet = Ø6mm
ISO G 1 1/2" pipe tread
Inside EM060L
Optical fiber inlet
52
25
100
20
360
165
120

Table of Contents