EasyManua.ls Logo

Panasonic CS-Z25UB4EAW

Panasonic CS-Z25UB4EAW
158 pages
To Next Page IconTo Next Page
To Next Page IconTo Next Page
To Previous Page IconTo Previous Page
To Previous Page IconTo Previous Page
Loading...
26
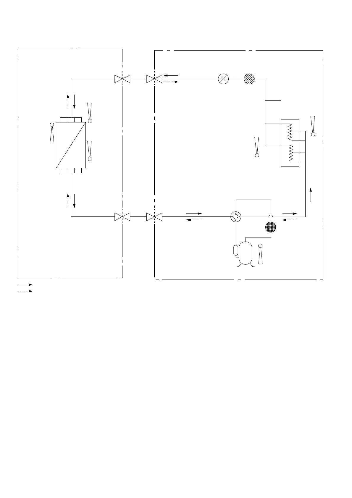
7.2 CS-Z50UB4EAW CU-Z50UBEA CS-Z60UB4EAW CU-Z60UBEA
INDOOR OUTDOOR
INTAKE
AIR
TEMP.
SENSOR
PIPE
TEMP.
SENSOR
AIR
TEMP.
SENSOR
LIQUID
SIDE
2-WAY
VALVE
3-WAY
VALVE
GAS
SIDE
COOLING
HEAT EXCHANGER
(EVAPORATOR)
HEATING
COMPRESSOR
CONDENSER
PROCESS
TUBE
STRAINER
EXPANSION
VALVE
4-WAYS VALVE
TANK
SENSOR
PIPE
TEMP.
SENSOR 1
PIPE
TEMP.
SENSOR 2
RECEIVER

Table of Contents

Related product manuals