EasyManua.ls Logo

Panasonic CS-Z25UB4EAW

Panasonic CS-Z25UB4EAW
158 pages
To Next Page IconTo Next Page
To Next Page IconTo Next Page
To Previous Page IconTo Previous Page
To Previous Page IconTo Previous Page
Loading...
27
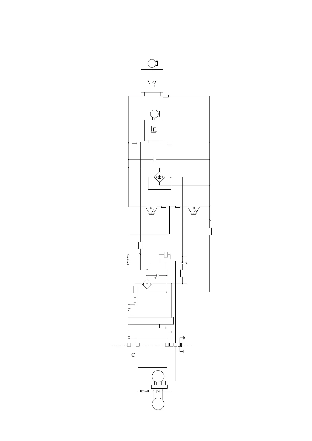
8. Block Diagram
8.1 CS-Z25UB4EAW CU-Z25UBEA CS-Z35UB4EAW CU-Z35UBEA
COMPRESSOR
FAN MOTOR
Q1
Q35
Q36
D19
RY-AC
RY-PWR
DB103
D24
NTC
NTC
PTC
PTC1
SC
NTC
REACTOR
TH2
TH3
4-WAY
VALVE
TH1
IC25
FUSE101
DB101
FUSE2
FUSE104
FUSE103
SINGLE PHASE
POWER SUPPLY
SEN1
FUSE3
NOISE FILTER
L
1
2
3
N
MS
3~
MS
3~
(INDOOR UNIT)
(OUTDOOR UNIT)
FUSE
SC
DRAIN
PUM P
FAN
MOTOR

Table of Contents

Related product manuals