EasyManua.ls Logo

Panasonic TH-42PV70H

Panasonic TH-42PV70H
139 pages
To Next Page IconTo Next Page
To Next Page IconTo Next Page
To Previous Page IconTo Previous Page
To Previous Page IconTo Previous Page
Loading...
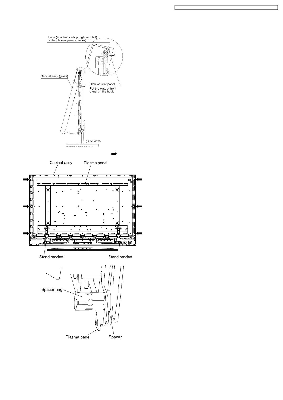
5. For leaving the plasma panel from the cabinet assy, pull the
bottom of the front frame forward, lift, and remove.
6. Remove the spacers and spacer rings (×6 ).
6.22. Replace the plasma panel
(finished)
1. Place the new plasma panel (finished) on the flat surface of
the table (covered by a soft cloth), with the plasma panel
surface facing downward.
2. Attach the C1-Board and the C2-Board, connect the flexible
cables (×16) from the Plasma panel to the C1-Board and
the C2-Board, and fit the flexible cable holders.
3. Attach the Hooks (left, right) and fit the stand brackets (L,
R) to the new plasma panel.
4. Place the plasma panel section on the servicing stand.
5. Attach the cabinet assy and each P.C.Board and so on, to
the new plasma panel.
*When fitting the cabnet assy, be careful not to allow any
debris, dust or handling residue to remain between the
front glass and plasma panel.
15
TH-42PV70AZ / TH-42PV70H / TH-42PV70M / TH-42PV70MR / TH-42PV70MT

Table of Contents

Related product manuals